0
  • Acheter De l'ancien
  • Louer
Dans un rayon de
Budget
Mini
Maxi

    Faites estimer votre bien par un professionnel

    Estimer votre bien

    2 pièces rénové avec grande terrasse – Paris 17e

    Paris (75017)
    Réf : CTLA 3

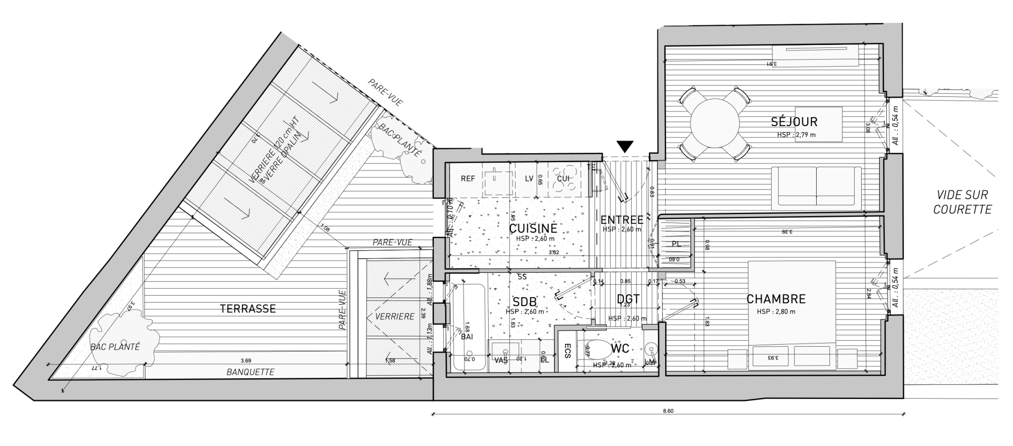
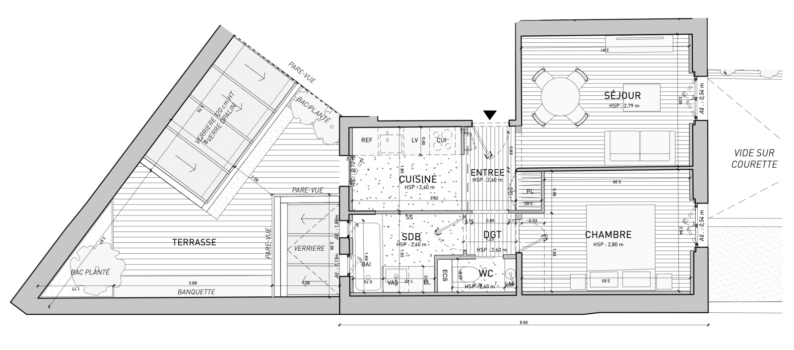
    Situé au sein d’une charmante copropriété en cours de rénovation intégrale, découvrez ce superbe appartement 2 pièces au 1er étage de 41,91 m² habitables, complétés par deux terrasses de 14 et 8m².

    L’entrée de l’appartement dessert un séjour/cuisine de 23,60m². La chambre, de 12,29 m², dispose d’une belle hauteur sous plafond avec parquet d’origine rénové. Une salle d’eau avec vasque en pierre naturelle et douche à l’italienne, ainsi qu’un WC séparé, complètent l’agencement de ce bien.

    Les prestations intérieures sont de qualité : parquet rénové dans les pièces sèches, carrelage grès cérame dans les pièces humides, menuiseries extérieures en double vitrage, chauffage électrique individuel par radiateurs à inertie. Le confort acoustique et thermique est assuré grâce aux doublages et aux équipements techniques performants (VMC individuelle, ballon d’eau chaude plat, etc.).

    La terrasse, est aménagée en bois exotique sur plots et entourée de pare-vues élégants. Des bacs plantés agrémentent l’espace, créant une atmosphère végétale.

    La résidence, répartie en deux bâtiments desservis chacun par une cage d’escalier, fait l’objet d’une rénovation globale menée par un promoteur reconnu. Les parties communes bénéficient d’un traitement architectural raffiné avec miroirs, cimaises, éclairages soignés et tapis d’escalier. Un local à vélos, des caves, ainsi qu’un système de contrôle d’accès par badge et digicode complètent les équipements collectifs. Ce programme de réhabilitation offre un cadre de vie sécurisé.

    Contactez-nous pour plus d'informations !

    Cave incluse dans le prix

    Images d'illustration, non contractuelles !

    découvrir le bien
    Prix du bien 569 000 €
    Pièce(s) 2
    Chambre(s) 1

    Caractéristiques du bien

    Caractéristiques Valeurs
    Code postal 75017
    Surface habitable (m²) 41,91 m²
    Surface loi Carrez (m²) 41,91 m²
    Nombre de chambre(s) 1
    Nombre de pièces 2
    Etage 1
    Nombre de niveaux 1
    Ascenseur NON
    Vue Dégagée
    Nb de salle d'eau 1
    Cuisine Américaine
    Mode de chauffage Electrique
    Type de chauffage Radiateur
    Format de chauffage Individuel
    Interphone OUI
    Visiophone OUI
    Balcon NON
    Loggia NON
    Terrasse OUI
    Cave OUI
    Exposition Nord-Ouest
    Année de construction 2025

    Infos financières

    Caractéristiques Valeurs
    Prix de vente honoraires TTC inclus 569 000 €

    Bilans énergétiques

    DPE GES
    Ce bien vous intéresse ?
    Fieldset par défaut
    Fieldset par défaut
    Validation

    * Champs obligatoires

    Contacter l'agence
    Validation
    Les informations recueillies sur ce formulaire sont enregistrées dans un fichier informatisé par La Boite Immo agissant comme Sous-traitant du traitement pour la gestion de la clientèle/prospects de l'Agence / du Réseau qui reste Responsable du Traitement de vos Données personnelles. La base légale du traitement repose sur l'intérêt légitime de l'Agence / du Réseau. Elles sont conservées jusqu'à demande de suppression et sont destinées à l'Agence / au Réseau. Conformément à la loi « informatique et libertés », vous disposez des droits d’accès, de rectification, d’effacement, d’opposition, de limitation et de portabilité de vos données. Vous pouvez retirer votre consentement à tout moment en contactant directement l’Agence / Le Réseau. Consultez le site https://cnil.fr/fr pour plus d’informations sur vos droits. Si vous estimez, après avoir contacté l'Agence / le Réseau, que vos droits « Informatique et Libertés » ne sont pas respectés, vous pouvez adresser une réclamation à la CNIL. Nous vous informons de l’existence de la liste d'opposition au démarchage téléphonique « Bloctel », sur laquelle vous pouvez vous inscrire ici : https://www.bloctel.gouv.fr Dans le cadre de la protection des Données personnelles, nous vous invitons à ne pas inscrire de Données sensibles dans le champ de saisie libre.
    Ce site est protégé par reCAPTCHA, les Politiques de Confidentialité et les Conditions d'Utilisation de Google s'appliquent.

    Localisationdu bien

    • Commerces et santé
    • Loisirs
    • Ecoles
    • Transports
    • Pratique