0
  • Acheter De l'ancien
  • Louer
Dans un rayon de
Budget
Mini
Maxi

    Faites estimer votre bien par un professionnel

    Estimer votre bien

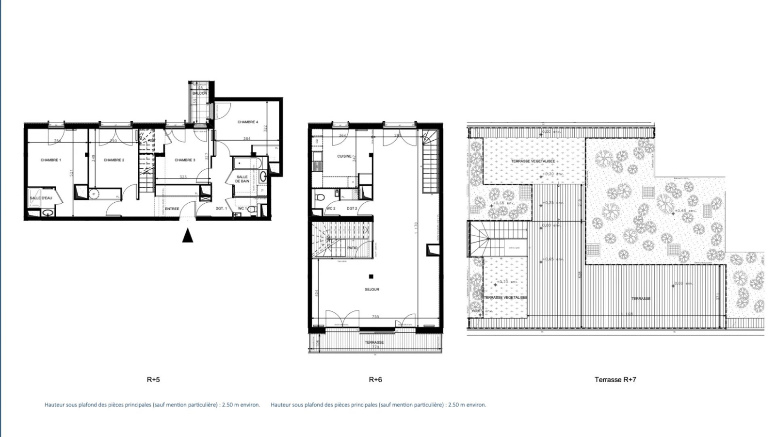
    Triplex rooftop, 110m² d'extérieur !

    Paris (75018)
    Réf : CFFM 3

    Triplex en étage élevé, rue Versigny à Paris 18ème.

    L'appartement propose, sur 2 niveaux de vie et son rooftop , un séjour de 56m², une cuisine séparée de 12m2, une suite parentale avec salle d'eau privative et 3 autres chambres spacieuses.

    Côté extérieures, une terrasse ou balcon à chaque niveau, en plus du toit-terrasse privatif de 95m² !

    Prestations de très haute qualité, un appartement à ne pas rater ! Images d'illustration, non contractuelles.

    découvrir le bien
    Prix du bien 2 700 000 €
    Pièce(s) 5
    Chambre(s) 4

    Caractéristiques du bien

    Caractéristiques Valeurs
    Code postal 75018
    Surface habitable (m²) 147,16 m²
    Surface loi Carrez (m²) 147,16 m²
    Nombre de chambre(s) 4
    Nombre de pièces 5
    Etage 6
    Nombre de niveaux 2
    Vue Montmartre
    Nb de salle de bains 1
    Nb de salle d'eau 1
    Mode de chauffage Electrique
    Type de chauffage Radiateur
    Format de chauffage Individuel
    Balcon OUI
    Loggia OUI
    Terrasse OUI
    Exposition Nord-Sud
    Année de construction 2025

    Infos financières

    Caractéristiques Valeurs
    Prix de vente 2 700 000 €
    Les honoraires d'agence seront intégralement à la charge du vendeur  

    Bilans énergétiques

    DPE GES
    Ce bien vous intéresse ?
    Fieldset par défaut
    Fieldset par défaut
    Validation

    * Champs obligatoires

    Contacter l'agence
    Validation
    Les informations recueillies sur ce formulaire sont enregistrées dans un fichier informatisé par La Boite Immo agissant comme Sous-traitant du traitement pour la gestion de la clientèle/prospects de l'Agence / du Réseau qui reste Responsable du Traitement de vos Données personnelles. La base légale du traitement repose sur l'intérêt légitime de l'Agence / du Réseau. Elles sont conservées jusqu'à demande de suppression et sont destinées à l'Agence / au Réseau. Conformément à la loi « informatique et libertés », vous disposez des droits d’accès, de rectification, d’effacement, d’opposition, de limitation et de portabilité de vos données. Vous pouvez retirer votre consentement à tout moment en contactant directement l’Agence / Le Réseau. Consultez le site https://cnil.fr/fr pour plus d’informations sur vos droits. Si vous estimez, après avoir contacté l'Agence / le Réseau, que vos droits « Informatique et Libertés » ne sont pas respectés, vous pouvez adresser une réclamation à la CNIL. Nous vous informons de l’existence de la liste d'opposition au démarchage téléphonique « Bloctel », sur laquelle vous pouvez vous inscrire ici : https://www.bloctel.gouv.fr Dans le cadre de la protection des Données personnelles, nous vous invitons à ne pas inscrire de Données sensibles dans le champ de saisie libre.
    Ce site est protégé par reCAPTCHA, les Politiques de Confidentialité et les Conditions d'Utilisation de Google s'appliquent.

    Localisationdu bien

    • Commerces et santé
    • Loisirs
    • Ecoles
    • Transports
    • Pratique