0
  • Acheter De l'ancien
  • Louer
Dans un rayon de
Budget
Mini
Maxi

    Faites estimer votre bien par un professionnel

    Estimer votre bien

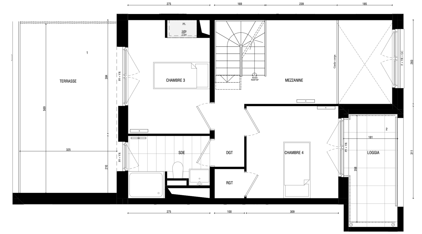
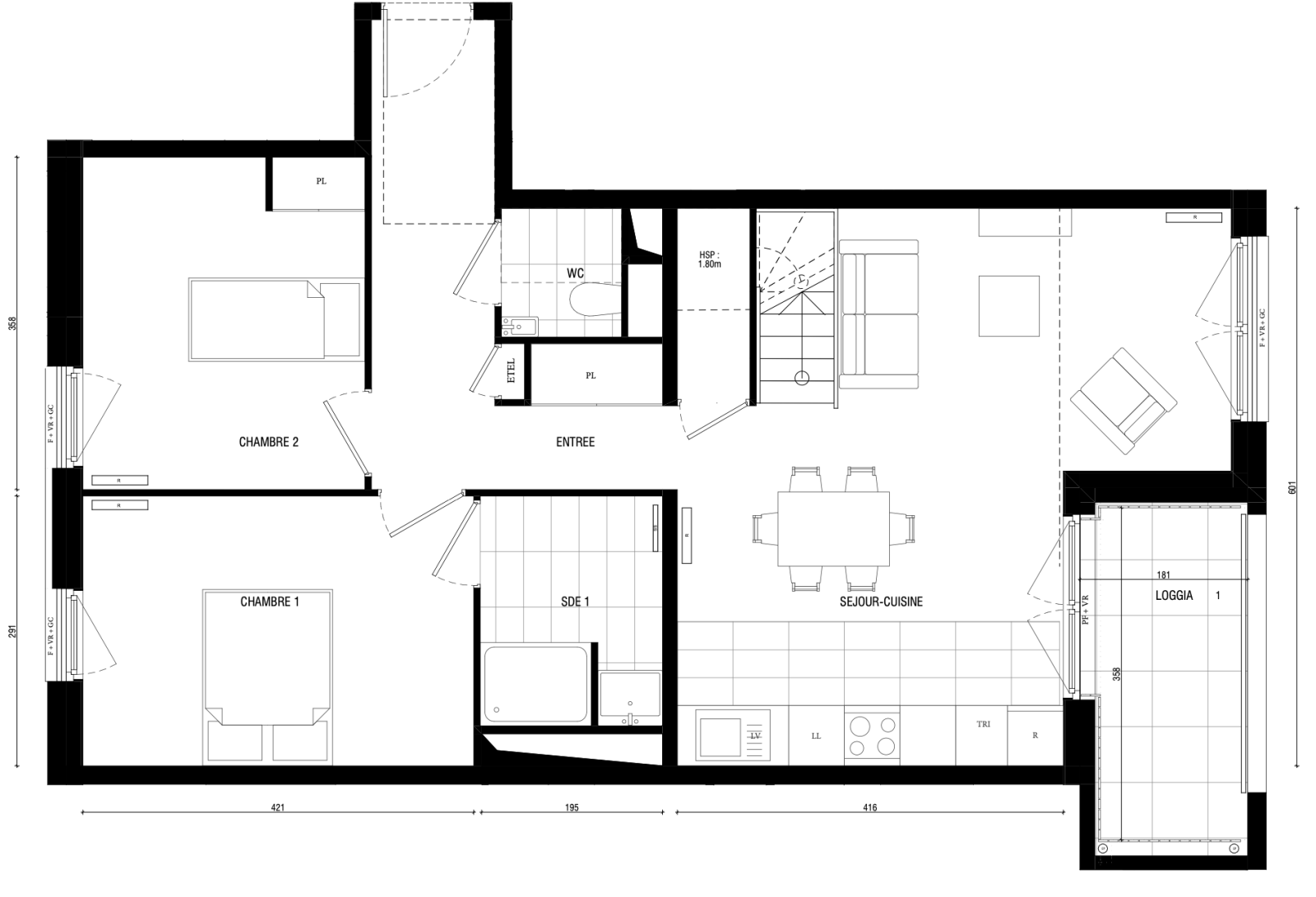
    T5 en TRIPLEX avec deux loggias, deux terrasses dont une en ROOFTOP.

    Paris (75018)
    Réf : ENM PRTNR 3

    Livraison 2027 !

    Découvrez cet appartement 5 pièces en TRIPLEX situé au dernier étage de la résidence.

    Ce logement se compose, sur le premier niveau, d'une entrée desservant un séjour avec cuisine ouverte, deux chambres, une salle d’eau, un WC indépendant et une loggia.

    À l’étage supérieur, vous trouverez deux autres chambres, une seconde salle d’eau, un dégagement, une mezzanine, ainsi qu’un espace de rangement. Une terrasse et une loggia viennent prolonger les espaces de vie à ce niveau.

    Enfin, un troisième niveau donne accès à une grande terrasse en rooftop.

    La surface habitable est de 104,4 m², à laquelle s’ajoutent 56,2 m² d'espaces extérieurs (loggias et terrasses).

    Images d'illustration, non contractuelles !

    découvrir le bien
    Prix du bien 1 221 000 €
    Pièce(s) 5
    Chambre(s) 4

    Caractéristiques du bien

    Caractéristiques Valeurs
    Code postal 75018
    Surface habitable (m²) 104,40 m²
    Surface loi Carrez (m²) 104,40 m²
    Nombre de chambre(s) 4
    Nombre de pièces 5
    Nombre de niveaux 3
    Ascenseur OUI
    Vue dégagée ville
    Nb de salle d'eau 2
    Cuisine Américaine
    Interphone OUI
    Balcon NON
    Loggia OUI
    Terrasse OUI
    Exposition Est

    Infos financières

    Caractéristiques Valeurs
    Prix de vente 1 221 000 €
    Les honoraires d'agence seront intégralement à la charge du vendeur  

    Bilans énergétiques

    DPE GES
    Ce bien vous intéresse ?
    Fieldset par défaut
    Fieldset par défaut
    Validation

    * Champs obligatoires

    Contacter l'agence
    Validation
    Les informations recueillies sur ce formulaire sont enregistrées dans un fichier informatisé par La Boite Immo agissant comme Sous-traitant du traitement pour la gestion de la clientèle/prospects de l'Agence / du Réseau qui reste Responsable du Traitement de vos Données personnelles. La base légale du traitement repose sur l'intérêt légitime de l'Agence / du Réseau. Elles sont conservées jusqu'à demande de suppression et sont destinées à l'Agence / au Réseau. Conformément à la loi « informatique et libertés », vous disposez des droits d’accès, de rectification, d’effacement, d’opposition, de limitation et de portabilité de vos données. Vous pouvez retirer votre consentement à tout moment en contactant directement l’Agence / Le Réseau. Consultez le site https://cnil.fr/fr pour plus d’informations sur vos droits. Si vous estimez, après avoir contacté l'Agence / le Réseau, que vos droits « Informatique et Libertés » ne sont pas respectés, vous pouvez adresser une réclamation à la CNIL. Nous vous informons de l’existence de la liste d'opposition au démarchage téléphonique « Bloctel », sur laquelle vous pouvez vous inscrire ici : https://www.bloctel.gouv.fr Dans le cadre de la protection des Données personnelles, nous vous invitons à ne pas inscrire de Données sensibles dans le champ de saisie libre.
    Ce site est protégé par reCAPTCHA, les Politiques de Confidentialité et les Conditions d'Utilisation de Google s'appliquent.

    Localisationdu bien

    • Commerces et santé
    • Loisirs
    • Ecoles
    • Transports
    • Pratique