0
  • Acheter De l'ancien
  • Louer
Dans un rayon de
Budget
Mini
Maxi

    Faites estimer votre bien par un professionnel

    Estimer votre bien

    T2 au 1er étage avec 3 balcons !

    Paris (75018)
    Réf : E-MCM 2

    Travaux en cours !

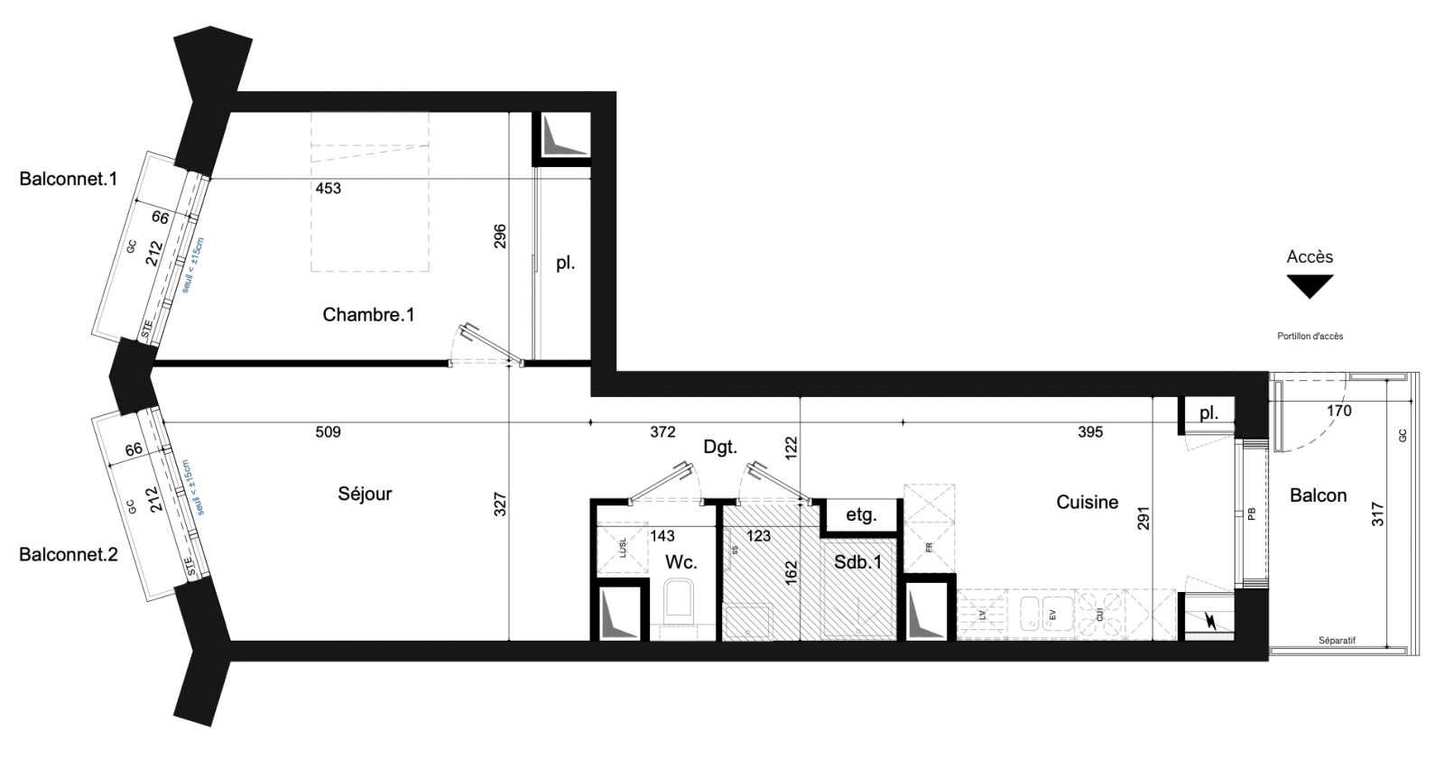
    Superbe T2 de 49,50m2 au sein d'une résidence neuve, aux prestations de grande qualité.

    Située en bordure d'un nouveau parc de plus de 6 hectares, à quelques pas de la station Rosa Parks, l'appartement dispose d'un séjour/cuisine de 31m2, une chambre de 13,60m2, une salle de bain et un wc indépendant. De plus, deux balconnets de 1,40m2 et un balcon de 5m2 complètent ce bien.

    La résidence s'inscrit au sein d'un nouveau quartier métropolitain qui se veut exemplaire, ambitieux et environnementalement vertueux. Vous profiterez d'un cadre exceptionnel avec une offre résidentielle de qualité, des commerces de proximité et un nouveau groupe scolaire. La proximité immédiate des transports (Métro 12, Tram 3b, RER E) est idéale pour rejoindre Montmartre, le coeur de Paris ou Le Millénaire en 10 min.

    Entièrement sécurisée, la résidence compte 35 superbes appartements, du studio au 5 pièces duplex, tous traversants, avec des prestations soignées et de qualité. Les plus grands appartements, aux dimensions familiales sont prolongés par de belles terrasses plein ciel à la vue dégagée.

    Soyez les premiers et profitez du meilleur choix au meilleur prix, avec des frais de notaires réduits !

    découvrir le bien
    Prix du bien 399 000 €
    Pièce(s) 2
    Chambre(s) 1

    Caractéristiques du bien

    Caractéristiques Valeurs
    Code postal 75018
    Surface habitable (m²) 49,50 m²
    Surface loi Carrez (m²) 49,50 m²
    Nombre de chambre(s) 1
    Nombre de pièces 2
    Etage 1
    Nombre de niveaux 1
    Ascenseur OUI
    Vue Ville
    Nb de salle d'eau 1
    Cuisine Américaine
    Mode de chauffage Géothermie
    Type de chauffage TRAD_TYPE_CHAUFF_CHAUDIERE
    Format de chauffage Collectif
    Interphone OUI
    Visiophone OUI
    Balcon OUI
    Terrasse OUI
    Cave NON
    Exposition Sud
    Année de construction 2025

    Infos financières

    Caractéristiques Valeurs
    Prix de vente honoraires TTC inclus 399 000 €

    Bilans énergétiques

    DPE GES
    Ce bien vous intéresse ?
    Fieldset par défaut
    Fieldset par défaut
    Validation

    * Champs obligatoires

    Contacter l'agence
    Validation
    Les informations recueillies sur ce formulaire sont enregistrées dans un fichier informatisé par La Boite Immo agissant comme Sous-traitant du traitement pour la gestion de la clientèle/prospects de l'Agence / du Réseau qui reste Responsable du Traitement de vos Données personnelles.
    La base légale du traitement repose sur l’intérêt légitime de l'Agence / du Réseau.
    Elles sont conservées jusqu'à demande de suppression et sont destinées à l'Agence / au Réseau.
    Conformément à la loi « informatique et libertés », vous pouvez exercer votre droit d'accès aux données vous concernant et les faire rectifier en contactant l'Agence / le Réseau.
    Si vous estimez, après avoir contacté l'Agence / le Réseau, que vos droits « Informatique et Libertés » ne sont pas respectés, vous pouvez adresser une réclamation à la CNIL.
    Nous vous informons de l’existence de la liste d'opposition au démarchage téléphonique « Bloctel », sur laquelle vous pouvez vous inscrire ici : https://www.bloctel.gouv.fr 
    Dans le cadre de la protection des Données personnelles, nous vous invitons à ne pas inscrire de Données sensibles dans le champ de saisie libre
    Ce site est protégé par reCAPTCHA, les Politiques de Confidentialité et les Conditions d'Utilisation de Google s'appliquent.

    Localisationdu bien

    • Commerces et santé
    • Loisirs
    • Ecoles
    • Transports
    • Pratique