0
  • Acheter De l'ancien
  • Louer
Dans un rayon de
Budget
Mini
Maxi

    Faites estimer votre bien par un professionnel

    Estimer votre bien

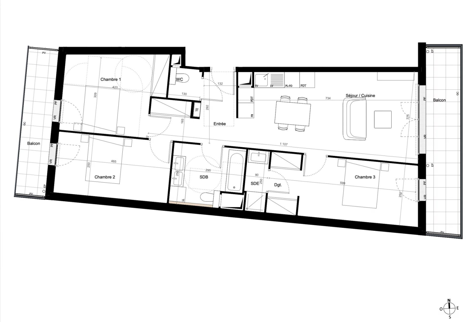
    T4 au 4ème étage avec balcon

    Bagnolet (93170)
    Réf : SDLK 4

    Découvrez ce T4 d'une surface de 82,48m², situé au 4ème étage. Dès l'entrée de 7,58 m², vous accédez à un séjour avec cuisine ouverte de 24,75 m².

    Trois chambres bien proportionnées complètent l'agencement : une première chambre de 12,78 m², une seconde de 11,64 m², et une troisième de 12,12 m².

    L'appartement dispose également de deux salles d'eau : une salle de bains spacieuse de 6,74 m² et une salle d'/eau de 2,17 m² et un WC séparé de 1,65 m².

    Enfin, deux grands balcons totalisant 17,88 m² sont accessibles depuis plusieurs pièces, apportant un véritable atout extérieur.

    Contactez-nous pour plus d'informations. Prix affiché en TVA réduite ! Images d'illustration, non contractuelles.

    découvrir le bien
    Prix du bien 482 000 €
    Pièce(s) 4
    Chambre(s) 3

    Caractéristiques du bien

    Caractéristiques Valeurs
    Code postal 93170
    Surface habitable (m²) 82,48 m²
    Surface loi Carrez (m²) 82,48 m²
    Nombre de chambre(s) 3
    Nombre de pièces 4
    Etage 4
    Vue Aperçu,Ville
    Nb de salle d'eau 1
    Mode de chauffage Autre
    Type de chauffage Radiateur
    Format de chauffage AUTRE
    Balcon OUI
    Exposition Est

    Infos financières

    Caractéristiques Valeurs
    Prix de vente 482 000 €
    Les honoraires d'agence seront intégralement à la charge du vendeur  

    Bilans énergétiques

    DPE GES
    Ce bien vous intéresse ?
    Fieldset par défaut
    Fieldset par défaut
    Validation

    * Champs obligatoires

    Contacter l'agence
    Validation
    Les informations recueillies sur ce formulaire sont enregistrées dans un fichier informatisé par La Boite Immo agissant comme Sous-traitant du traitement pour la gestion de la clientèle/prospects de l'Agence / du Réseau qui reste Responsable du Traitement de vos Données personnelles. La base légale du traitement repose sur l'intérêt légitime de l'Agence / du Réseau. Elles sont conservées jusqu'à demande de suppression et sont destinées à l'Agence / au Réseau. Conformément à la loi « informatique et libertés », vous disposez des droits d’accès, de rectification, d’effacement, d’opposition, de limitation et de portabilité de vos données. Vous pouvez retirer votre consentement à tout moment en contactant directement l’Agence / Le Réseau. Consultez le site https://cnil.fr/fr pour plus d’informations sur vos droits. Si vous estimez, après avoir contacté l'Agence / le Réseau, que vos droits « Informatique et Libertés » ne sont pas respectés, vous pouvez adresser une réclamation à la CNIL. Nous vous informons de l’existence de la liste d'opposition au démarchage téléphonique « Bloctel », sur laquelle vous pouvez vous inscrire ici : https://www.bloctel.gouv.fr Dans le cadre de la protection des Données personnelles, nous vous invitons à ne pas inscrire de Données sensibles dans le champ de saisie libre.
    Ce site est protégé par reCAPTCHA, les Politiques de Confidentialité et les Conditions d'Utilisation de Google s'appliquent.

    Localisationdu bien

    • Commerces et santé
    • Loisirs
    • Ecoles
    • Transports
    • Pratique