0
  • Acheter De l'ancien
  • Louer
Dans un rayon de
Budget
Mini
Maxi

    Faites estimer votre bien par un professionnel

    Estimer votre bien

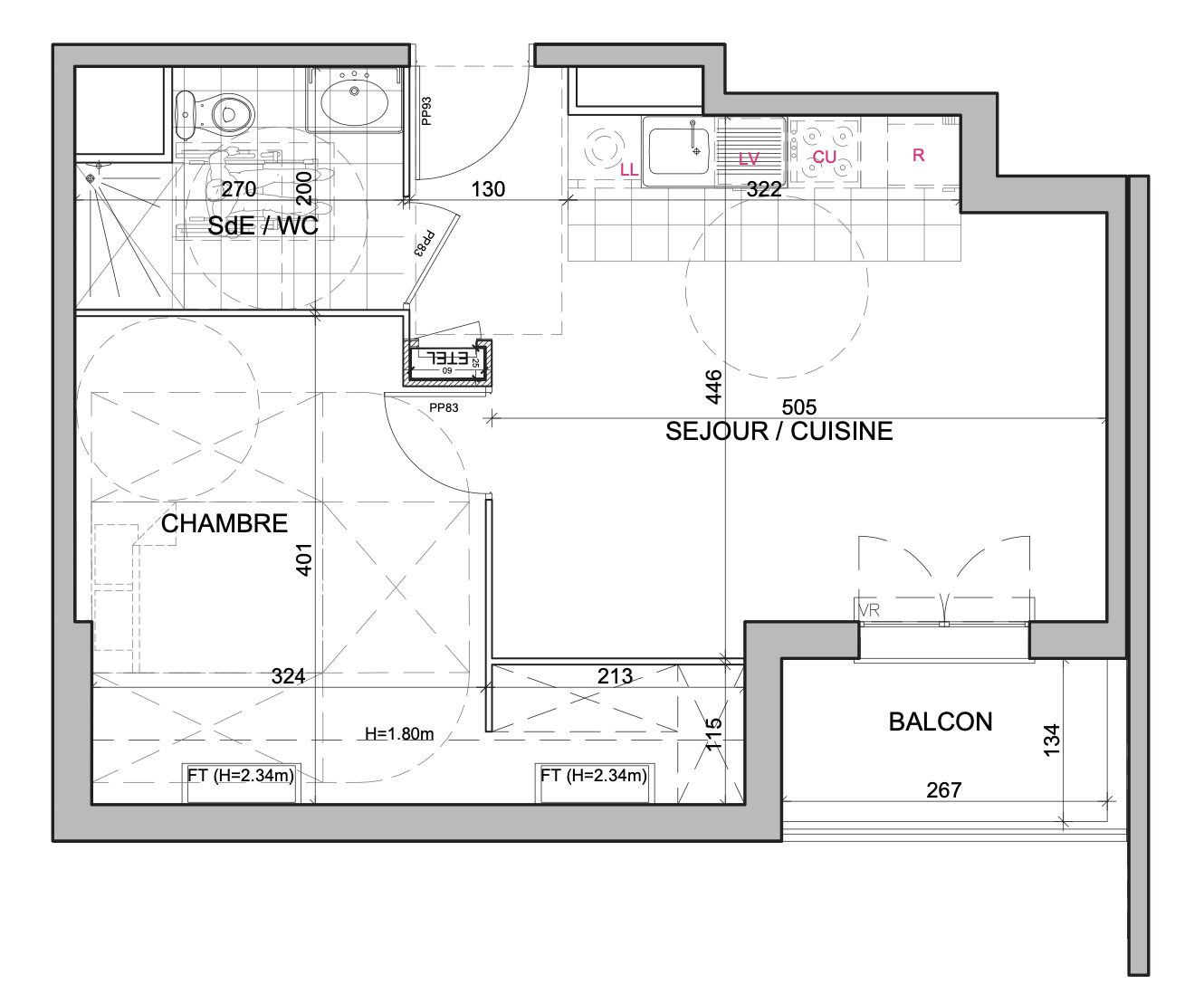
    Appartement 2 pièces avec balcon – Dernier niveau sous combles

    Draveil (91210)
    Réf : SPMO

    Appartement 2 pièces situé au dernier étage sous combles , à proximité des commodités.

    Le logement développe une surface habitable de 39,71 m². Il se compose d’un séjour avec cuisine intégrée de 22,40 m², d’une chambre de 12,54 m², ainsi que d’une salle d’eau avec WC de 4,77 m². Le séjour donne accès à un balcon de 3,58 m², constituant un espace extérieur attenant au logement.

    La résidence comprend plusieurs logements répartis sur différents niveaux. Les accès sont sécurisés. Des stationnements et des locaux vélos complètent l’ensemble.

    Contactez-nous pour plus d'informations ! 

    Une place de stationnement est incluse dans le prix.

    Images d'illustration, non contractuelles

    découvrir le bien
    Prix du bien 236 000 €
    Pièce(s) 2
    Chambre(s) 1

    Caractéristiques du bien

    Caractéristiques Valeurs
    Code postal 91210
    Surface habitable (m²) 39,71 m²
    Surface loi Carrez (m²) 39,71 m²
    Nombre de chambre(s) 1
    Nombre de pièces 2
    Etage 3
    Nombre de niveaux 1
    Ascenseur OUI
    Nb de salle d'eau 1
    Cuisine Américaine
    Mode de chauffage Mixte
    Type de chauffage Radiateur
    Format de chauffage Collectif
    Interphone OUI
    Visiophone OUI
    Balcon OUI
    Loggia NON
    Terrasse NON
    Cave NON
    Exposition Est
    Année de construction 2026

    Infos financières

    Caractéristiques Valeurs
    Prix de vente honoraires TTC inclus 236 000 €

    Bilans énergétiques

    DPE GES
    Ce bien vous intéresse ?
    Fieldset par défaut
    Fieldset par défaut
    Validation

    * Champs obligatoires

    Contacter l'agence
    Validation
    Les informations recueillies sur ce formulaire sont enregistrées dans un fichier informatisé par La Boite Immo agissant comme Sous-traitant du traitement pour la gestion de la clientèle/prospects de l'Agence / du Réseau qui reste Responsable du Traitement de vos Données personnelles. La base légale du traitement repose sur l'intérêt légitime de l'Agence / du Réseau. Elles sont conservées jusqu'à demande de suppression et sont destinées à l'Agence / au Réseau. Conformément à la loi « informatique et libertés », vous disposez des droits d’accès, de rectification, d’effacement, d’opposition, de limitation et de portabilité de vos données. Vous pouvez retirer votre consentement à tout moment en contactant directement l’Agence / Le Réseau. Consultez le site https://cnil.fr/fr pour plus d’informations sur vos droits. Si vous estimez, après avoir contacté l'Agence / le Réseau, que vos droits « Informatique et Libertés » ne sont pas respectés, vous pouvez adresser une réclamation à la CNIL. Nous vous informons de l’existence de la liste d'opposition au démarchage téléphonique « Bloctel », sur laquelle vous pouvez vous inscrire ici : https://www.bloctel.gouv.fr Dans le cadre de la protection des Données personnelles, nous vous invitons à ne pas inscrire de Données sensibles dans le champ de saisie libre.
    Ce site est protégé par reCAPTCHA, les Politiques de Confidentialité et les Conditions d'Utilisation de Google s'appliquent.

    Localisationdu bien

    • Commerces et santé
    • Loisirs
    • Ecoles
    • Transports
    • Pratique