0
  • Acheter De l'ancien
  • Louer
Dans un rayon de
Budget
Mini
Maxi

    Faites estimer votre bien par un professionnel

    Estimer votre bien

    Appartement 4 pièces en duplex avec terrasses et parking.

    Orly (94310)
    Réf : PRMVF

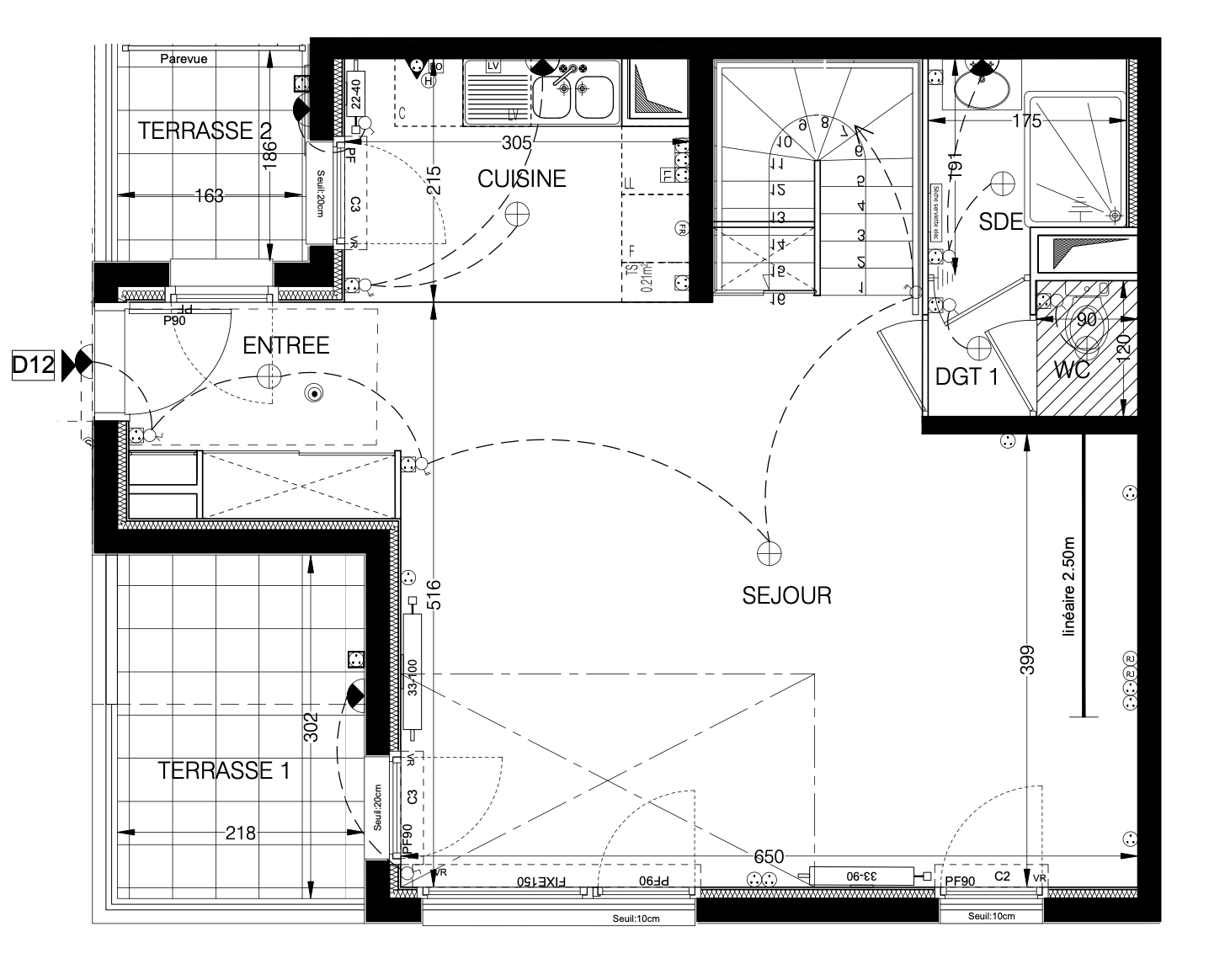
    Appartement de quatre pièces en duplex situé au premier étage d’une résidence à taille maîtrisée.
    La surface habitable est de 90,85 m². Le bien dispose de deux terrasses de 6,72 m² et 3,57 m², soit 10,29 m² d’espaces extérieurs.

    Le premier niveau comprend une entrée menant à un séjour de 36,04 m², en lien direct avec les terrasses.
    La cuisine, séparée, développe une surface de 6,19 m².
    Ce niveau comprend également une salle d’eau de 2,98 m² et des toilettes indépendantes de 1,08 m².

    À l’étage, l’espace nuit se compose de trois chambres de 11,50 m²12,50 m² et 9,68 m².
    Un dégagement dessert une salle de bains de 3,35 m² ainsi que des toilettes indépendantes de 1,05 m².

    L’appartement bénéficie de prestations de qualité assurant un usage fonctionnel et durable.
    Un emplacement de stationnement est inclus dans le prix.

    La résidence est composée de bâtiments de faible hauteur organisés autour d’allées piétonnes et d’espaces paysagers.
    Elle propose des accès individualisés, des stationnements sécurisés et des locaux dédiés aux vélos, dans un environnement structuré et accessible.

    Contactez-nous pour plus d'informations !

    Frais de notaire offerts pour toute réservation

    Images d'illustration, non contractuelles

    Prix du bien 460 800 €
    Pièce(s) 4
    Chambre(s) 3

    Caractéristiques du bien

    Caractéristiques Valeurs
    Code postal 94310
    Surface habitable (m²) 90,85 m²
    Surface loi Carrez (m²) 90,85 m²
    Nombre de chambre(s) 3
    Nombre de pièces 4
    Etage 1
    Nombre de niveaux 2
    Ascenseur OUI
    Nb de salle de bains 1
    Nb de salle d'eau 1
    Cuisine Américaine
    Mode de chauffage Autre
    Type de chauffage Radiateur
    Format de chauffage TRAD_FORMAT_CHAUFF_URBAIN
    Interphone OUI
    Visiophone OUI
    Balcon NON
    Loggia NON
    Terrasse OUI
    Cave NON
    Exposition Est
    Année de construction 2026

    Infos financières

    Caractéristiques Valeurs
    Prix de vente honoraires TTC inclus 460 800 €

    Bilans énergétiques

    DPE GES
    Ce bien vous intéresse ?
    Fieldset par défaut
    Fieldset par défaut
    Validation

    * Champs obligatoires

    Contacter l'agence
    Validation
    Les informations recueillies sur ce formulaire sont enregistrées dans un fichier informatisé par La Boite Immo agissant comme Sous-traitant du traitement pour la gestion de la clientèle/prospects de l'Agence / du Réseau qui reste Responsable du Traitement de vos Données personnelles. La base légale du traitement repose sur l'intérêt légitime de l'Agence / du Réseau. Elles sont conservées jusqu'à demande de suppression et sont destinées à l'Agence / au Réseau. Conformément à la loi « informatique et libertés », vous disposez des droits d’accès, de rectification, d’effacement, d’opposition, de limitation et de portabilité de vos données. Vous pouvez retirer votre consentement à tout moment en contactant directement l’Agence / Le Réseau. Consultez le site https://cnil.fr/fr pour plus d’informations sur vos droits. Si vous estimez, après avoir contacté l'Agence / le Réseau, que vos droits « Informatique et Libertés » ne sont pas respectés, vous pouvez adresser une réclamation à la CNIL. Nous vous informons de l’existence de la liste d'opposition au démarchage téléphonique « Bloctel », sur laquelle vous pouvez vous inscrire ici : https://www.bloctel.gouv.fr Dans le cadre de la protection des Données personnelles, nous vous invitons à ne pas inscrire de Données sensibles dans le champ de saisie libre.
    Ce site est protégé par reCAPTCHA, les Politiques de Confidentialité et les Conditions d'Utilisation de Google s'appliquent.

    Localisationdu bien

    • Commerces et santé
    • Loisirs
    • Ecoles
    • Transports
    • Pratique