0
  • Acheter De l'ancien
  • Louer
Dans un rayon de
Budget
Mini
Maxi

    Faites estimer votre bien par un professionnel

    Estimer votre bien

    Cœur de ville – Appartement 2 pièces au sein d’une résidence récente.

    Arpajon (91290)
    Réf : EMCM

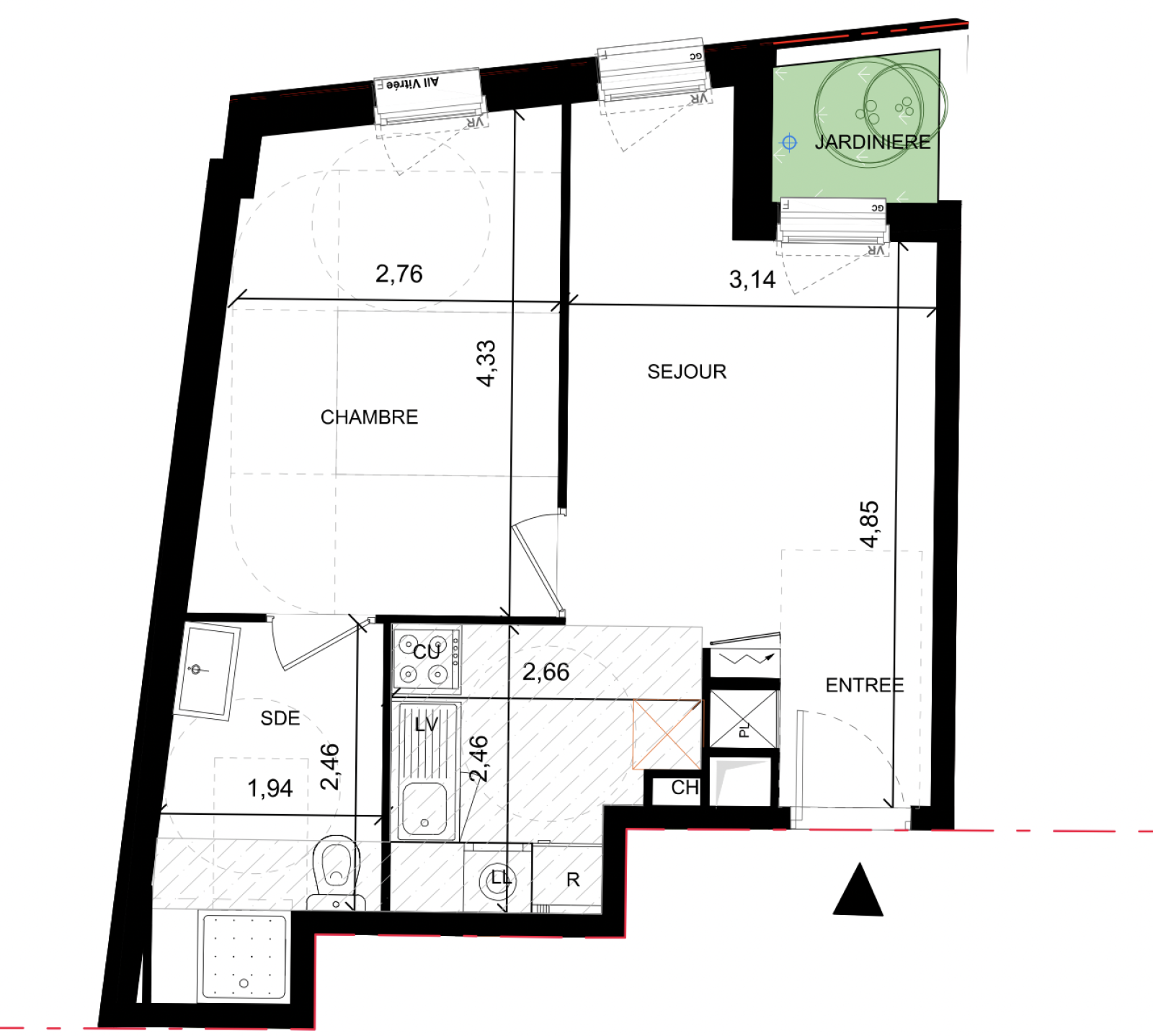
    Au rez-de-chaussée d’une résidence située à proximité du centre-ville, appartement 2 pièces d’une surface habitable de 37,60 m².

    Le logement se compose d’un séjour avec cuisine intégrée de 20,60 m², formant un espace de vie fonctionnel. La chambre de 12,30 m² est distincte de la pièce principale. Une salle d’eau de 4,70 m² complète l’ensemble.

    La résidence est composée d’un nombre limité de logements répartis sur deux étages avec combles. Les accès sont sécurisés et les parties communes sont conçues pour un usage quotidien. Un stationnement est prévu en sous-sol et des locaux dédiés aux vélos complètent l’ensemble.

    Contactez-nous pour plus d'informations !

    Parking inclus dans le prix 

    Images d'illustration, non contractuelles 

    Prix du bien 199 000 €
    Pièce(s) 2
    Chambre(s) 1

    Caractéristiques du bien

    Caractéristiques Valeurs
    Code postal 91290
    Surface habitable (m²) 37,60 m²
    Surface loi Carrez (m²) 37,60 m²
    Nombre de chambre(s) 1
    Nombre de pièces 2
    Nombre de niveaux 1
    Nb de salle d'eau 1
    Cuisine Américaine
    Mode de chauffage Gaz
    Type de chauffage TRAD_TYPE_CHAUFF_CHAUDIERE
    Format de chauffage Individuel
    Interphone OUI
    Visiophone OUI
    Balcon NON
    Loggia NON
    Terrasse NON
    Cave NON
    Exposition Nord
    Année de construction 2024

    Infos financières

    Caractéristiques Valeurs
    Prix de vente honoraires TTC inclus 199 000 €

    Bilans énergétiques

    DPE GES
    Ce bien vous intéresse ?
    Fieldset par défaut
    Fieldset par défaut
    Validation

    * Champs obligatoires

    Contacter l'agence
    Validation
    Les informations recueillies sur ce formulaire sont enregistrées dans un fichier informatisé par La Boite Immo agissant comme Sous-traitant du traitement pour la gestion de la clientèle/prospects de l'Agence / du Réseau qui reste Responsable du Traitement de vos Données personnelles. La base légale du traitement repose sur l'intérêt légitime de l'Agence / du Réseau. Elles sont conservées jusqu'à demande de suppression et sont destinées à l'Agence / au Réseau. Conformément à la loi « informatique et libertés », vous disposez des droits d’accès, de rectification, d’effacement, d’opposition, de limitation et de portabilité de vos données. Vous pouvez retirer votre consentement à tout moment en contactant directement l’Agence / Le Réseau. Consultez le site https://cnil.fr/fr pour plus d’informations sur vos droits. Si vous estimez, après avoir contacté l'Agence / le Réseau, que vos droits « Informatique et Libertés » ne sont pas respectés, vous pouvez adresser une réclamation à la CNIL. Nous vous informons de l’existence de la liste d'opposition au démarchage téléphonique « Bloctel », sur laquelle vous pouvez vous inscrire ici : https://www.bloctel.gouv.fr Dans le cadre de la protection des Données personnelles, nous vous invitons à ne pas inscrire de Données sensibles dans le champ de saisie libre.
    Ce site est protégé par reCAPTCHA, les Politiques de Confidentialité et les Conditions d'Utilisation de Google s'appliquent.

    Localisationdu bien

    • Commerces et santé
    • Loisirs
    • Ecoles
    • Transports
    • Pratique