0
  • Acheter De l'ancien
  • Louer
Dans un rayon de
Budget
Mini
Maxi

    Faites estimer votre bien par un professionnel

    Estimer votre bien

    Appartement à vendre, dernier étage avec balcon.

    Saint-Denis (93200)
    Réf : VNC

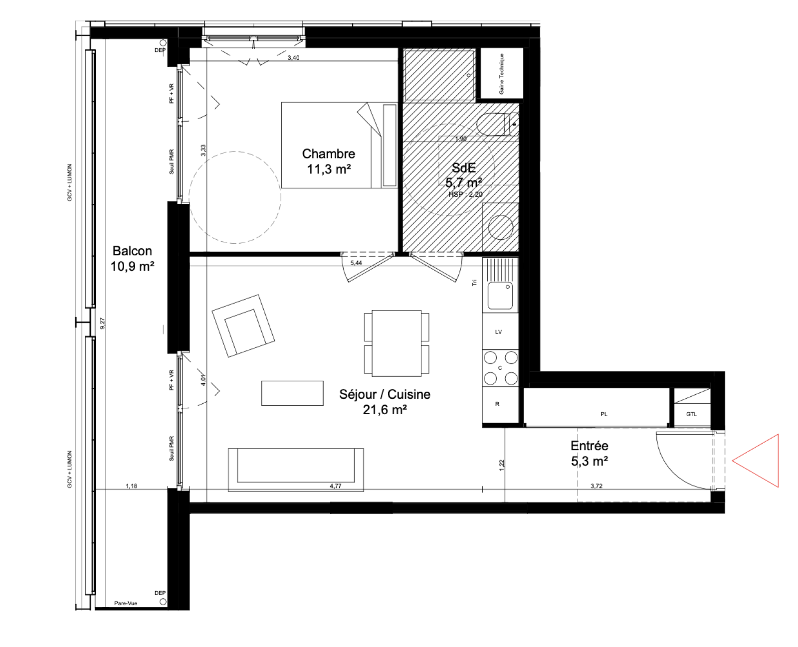
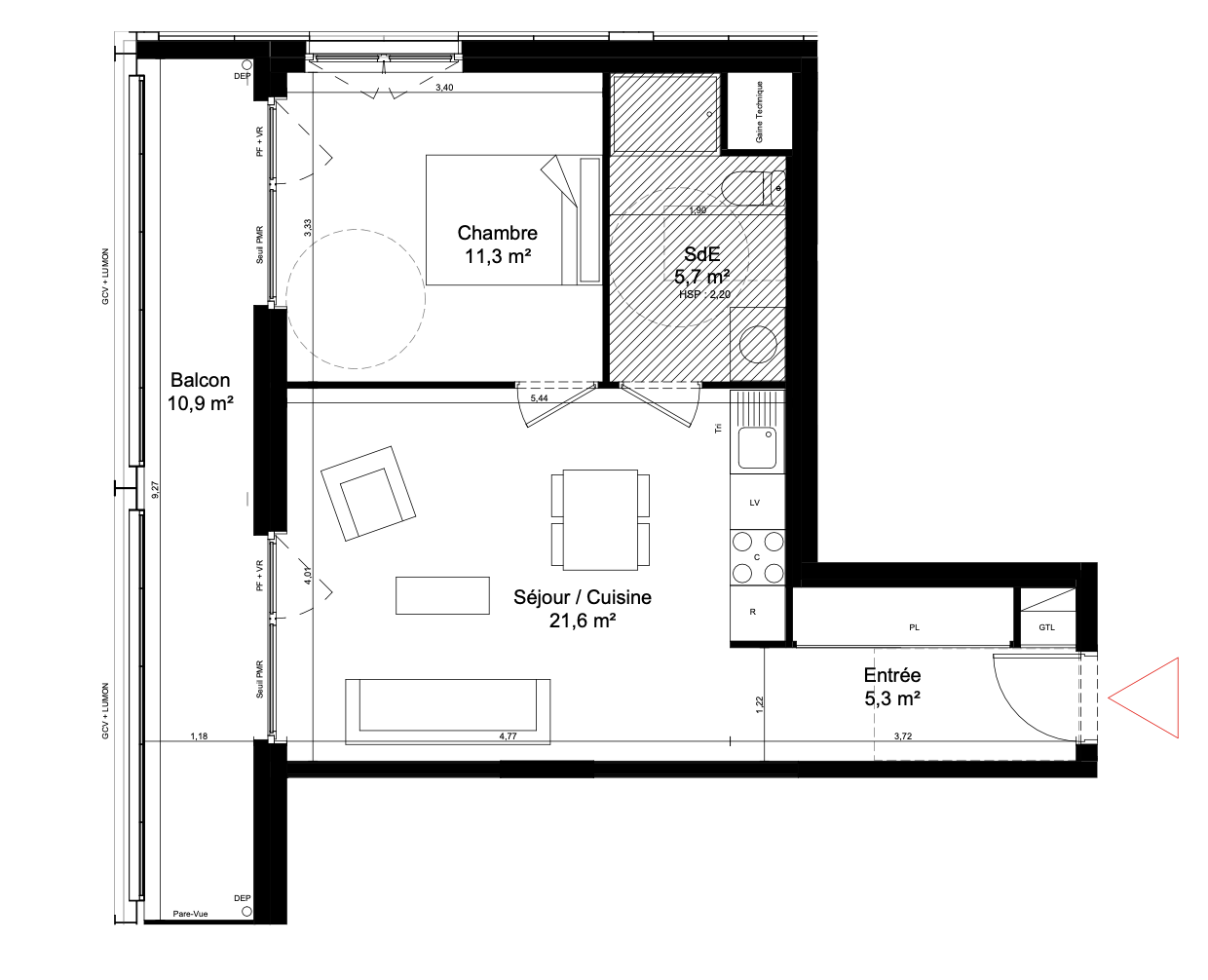
    Appartement de deux pièces situé au dernier étage de la residence.
    La surface habitable est de 43,90 m², complétée par un balcon de 10,90 m².

    L’entrée de 5,30 m² dessert l’ensemble du logement.
    Le séjour avec cuisine intégrée développe une surface de 21,60 m² et permet l’aménagement d’un espace salon et repas. Cet espace donne un accès direct au balcon.

    La chambre, séparée de la pièce de vie, présente une surface de 11,30 m².
    La salle d’eau avec WC représente 5,70 m² et est accessible depuis l’entrée.

    L’appartement s’inscrit dans une résidence intégrée à un ensemble urbain structuré, comprenant des logements, des commerces et des espaces paysagers.

    Contactez-nous pour plus d'informations !

    Images d'illustration, non contractuelles

    Prix du bien 362 000 €
    Pièce(s) 2
    Chambre(s) 1

    Caractéristiques du bien

    Caractéristiques Valeurs
    Code postal 93200
    Surface habitable (m²) 43,90 m²
    Surface loi Carrez (m²) 43,90 m²
    Nombre de chambre(s) 1
    Nombre de pièces 2
    Etage 13
    Nombre de niveaux 1
    Nb de salle d'eau 1
    Mode de chauffage Géothermie
    Type de chauffage Au sol
    Format de chauffage Collectif
    Interphone OUI
    Visiophone OUI
    Balcon OUI
    Loggia NON
    Terrasse NON
    Cave NON
    Exposition Nord-Ouest
    Année de construction 2025

    Infos financières

    Caractéristiques Valeurs
    Prix de vente honoraires TTC inclus 362 000 €

    Bilans énergétiques

    DPE GES
    Ce bien vous intéresse ?
    Fieldset par défaut
    Fieldset par défaut
    Validation

    * Champs obligatoires

    Contacter l'agence
    Validation
    Les informations recueillies sur ce formulaire sont enregistrées dans un fichier informatisé par La Boite Immo agissant comme Sous-traitant du traitement pour la gestion de la clientèle/prospects de l'Agence / du Réseau qui reste Responsable du Traitement de vos Données personnelles. La base légale du traitement repose sur l'intérêt légitime de l'Agence / du Réseau. Elles sont conservées jusqu'à demande de suppression et sont destinées à l'Agence / au Réseau. Conformément à la loi « informatique et libertés », vous disposez des droits d’accès, de rectification, d’effacement, d’opposition, de limitation et de portabilité de vos données. Vous pouvez retirer votre consentement à tout moment en contactant directement l’Agence / Le Réseau. Consultez le site https://cnil.fr/fr pour plus d’informations sur vos droits. Si vous estimez, après avoir contacté l'Agence / le Réseau, que vos droits « Informatique et Libertés » ne sont pas respectés, vous pouvez adresser une réclamation à la CNIL. Nous vous informons de l’existence de la liste d'opposition au démarchage téléphonique « Bloctel », sur laquelle vous pouvez vous inscrire ici : https://www.bloctel.gouv.fr Dans le cadre de la protection des Données personnelles, nous vous invitons à ne pas inscrire de Données sensibles dans le champ de saisie libre.
    Ce site est protégé par reCAPTCHA, les Politiques de Confidentialité et les Conditions d'Utilisation de Google s'appliquent.

    Localisationdu bien

    • Commerces et santé
    • Loisirs
    • Ecoles
    • Transports
    • Pratique