0
  • Acheter De l'ancien
  • Louer
Dans un rayon de
Budget
Mini
Maxi

    Faites estimer votre bien par un professionnel

    Estimer votre bien

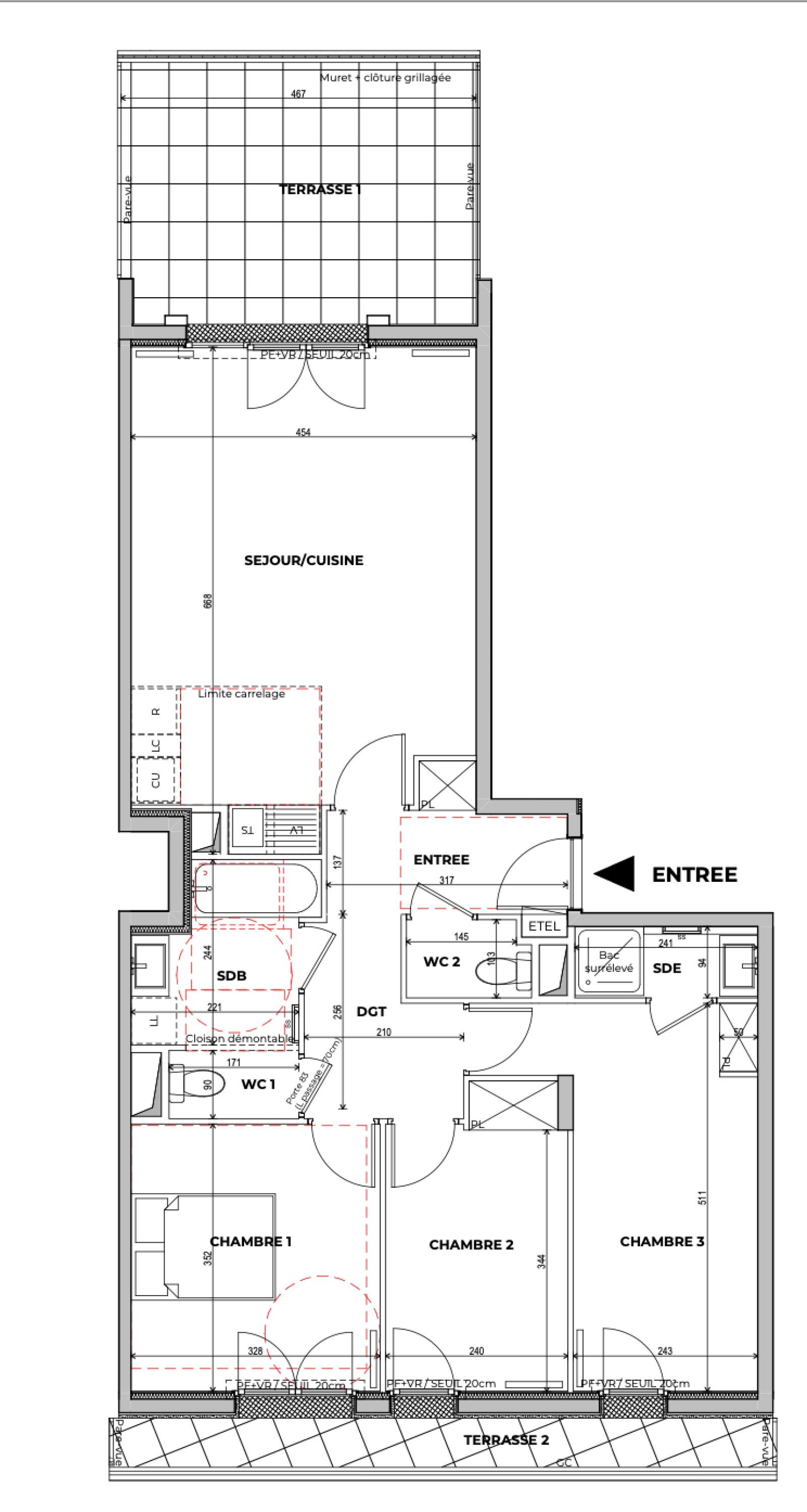
    T4 avec deux terrasses, cellier et parking.

    Colombes (92700)
    Réf : ENM PRTNR 1

    Découvrez ce T4 situé au 1er étage. La surface habitable est de 81,7 m².

    L’entrée (4m²) dessert un séjour avec cuisine ouverte (27m²). L’appartement comprend trois chambres de 9 à 13m².

    Une salle de bain (4,84 m²), une salle d’eau (2,27 m²), deux WC indépendants et un dégagement (4,65 m²).

    La terrasse de 16m2 est accessible depuis le séjour et celle de 5,41m2 depuis toutes les chambres.

    Contactez-nous pour plus d'informations !

    Parking et cave inclus dans le prix

    Images d'illustration, non contractuelles

    découvrir le bien
    Prix du bien 467 000 €
    Pièce(s) 4
    Chambre(s) 3

    Caractéristiques du bien

    Caractéristiques Valeurs
    Code postal 92700
    Surface habitable (m²) 81,70 m²
    Surface loi Carrez (m²) 81,70 m²
    Nombre de chambre(s) 3
    Nombre de pièces 4
    Etage 1
    Nombre de niveaux 1
    Ascenseur OUI
    Vue dégagée
    Nb de salle de bains 1
    Nb de salle d'eau 1
    Cuisine Américaine
    Mode de chauffage Gaz
    Type de chauffage Radiateur
    Format de chauffage Collectif
    Interphone OUI
    Terrasse OUI
    Cave NON
    Exposition Est

    Infos financières

    Caractéristiques Valeurs
    Prix de vente honoraires TTC inclus 467 000 €

    Bilans énergétiques

    DPE GES
    Ce bien vous intéresse ?
    Fieldset par défaut
    Fieldset par défaut
    Validation

    * Champs obligatoires

    Contacter l'agence
    Validation
    Les informations recueillies sur ce formulaire sont enregistrées dans un fichier informatisé par La Boite Immo agissant comme Sous-traitant du traitement pour la gestion de la clientèle/prospects de l'Agence / du Réseau qui reste Responsable du Traitement de vos Données personnelles.
    La base légale du traitement repose sur l’intérêt légitime de l'Agence / du Réseau.
    Elles sont conservées jusqu'à demande de suppression et sont destinées à l'Agence / au Réseau.
    Conformément à la loi « informatique et libertés », vous pouvez exercer votre droit d'accès aux données vous concernant et les faire rectifier en contactant l'Agence / le Réseau.
    Si vous estimez, après avoir contacté l'Agence / le Réseau, que vos droits « Informatique et Libertés » ne sont pas respectés, vous pouvez adresser une réclamation à la CNIL.
    Nous vous informons de l’existence de la liste d'opposition au démarchage téléphonique « Bloctel », sur laquelle vous pouvez vous inscrire ici : https://www.bloctel.gouv.fr 
    Dans le cadre de la protection des Données personnelles, nous vous invitons à ne pas inscrire de Données sensibles dans le champ de saisie libre
    Ce site est protégé par reCAPTCHA, les Politiques de Confidentialité et les Conditions d'Utilisation de Google s'appliquent.

    Localisationdu bien

    • Commerces et santé
    • Loisirs
    • Ecoles
    • Transports
    • Pratique