0
  • Acheter De l'ancien
  • Louer
Dans un rayon de
Budget
Mini
Maxi

    Faites estimer votre bien par un professionnel

    Estimer votre bien

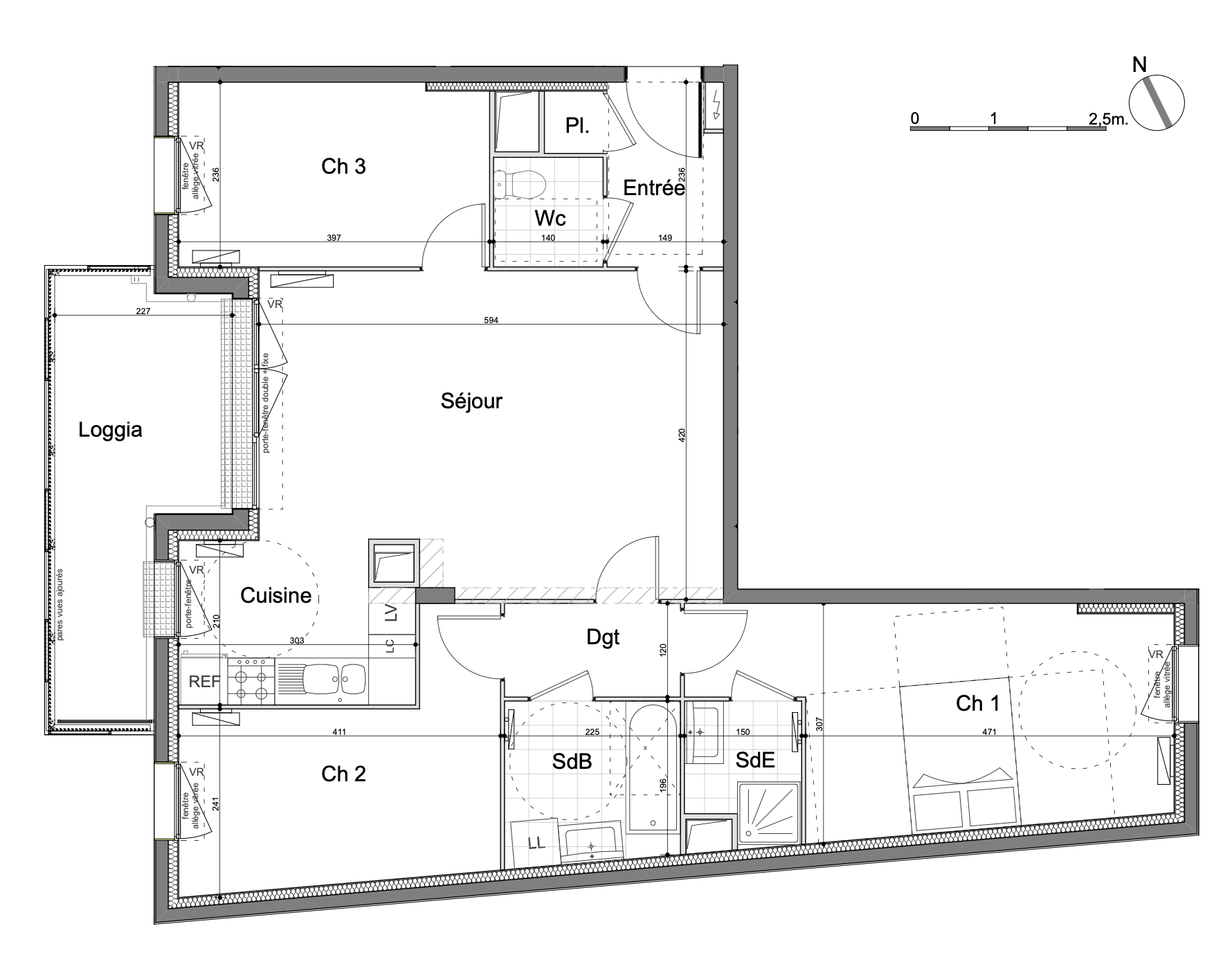
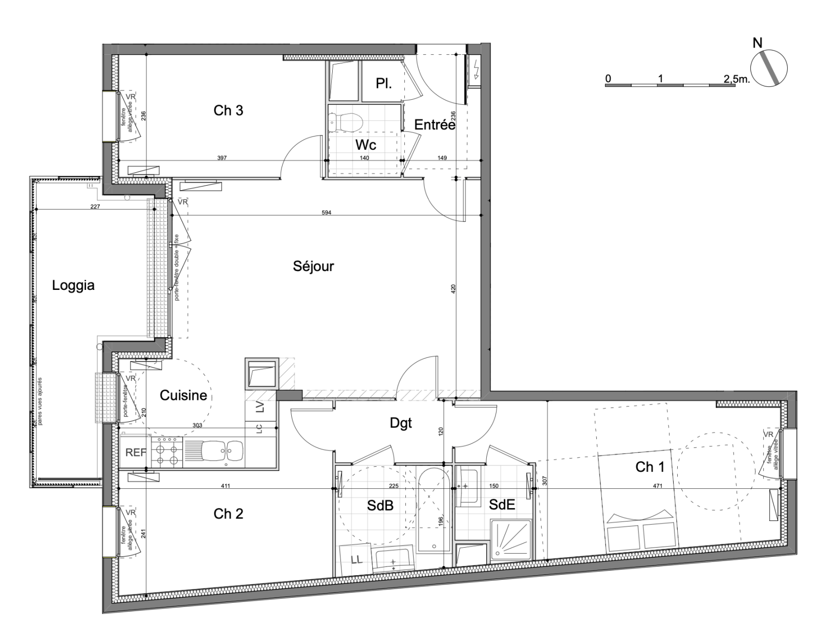
    T4 au 2ème étage avec loggia et parking.

    Aubervilliers (93300)
    Réf : NCA

    Découvrez ce bel appartement de 4 pièces situé au 2ème étage. Ce logement offre une surface habitable de 80,19 m² ainsi qu'une loggia de 9,80 m².

    L’entrée ouvre sur un vaste séjour avec cuisine ouverte de 29,37 m². L’espace nuit se compose de trois chambres confortables: 15,21 m², 10,58 m² et 9,28 m². Une salle de bain, une salle d’eau, un WC séparé ainsi qu’un dégagement complètent l’agencement.

    La résidence, pensée pour le confort de ses habitants, offre un cadre de vie agréable, sécurisé et verdoyant. Les parties communes sont soignées et l’environnement résidentiel apporte une vraie qualité de vie au quotidien.

    Contactez-nous pour plus d'informations !

    Parking inclus dans le prix

    Images d'illustration, non contractuelles

    Prix du bien 309 876 €
    Pièce(s) 4
    Chambre(s) 3

    Caractéristiques du bien

    Caractéristiques Valeurs
    Code postal 93300
    Surface habitable (m²) 80,19 m²
    Surface loi Carrez (m²) 80,19 m²
    Nombre de chambre(s) 3
    Nombre de pièces 4
    Etage 2
    Nombre de niveaux 1
    Nb de salle de bains 1
    Nb de salle d'eau 1
    Cuisine Américaine
    Mode de chauffage Gaz
    Type de chauffage Radiateur
    Format de chauffage Collectif
    Interphone OUI
    Visiophone OUI
    Balcon NON
    Loggia OUI
    Terrasse NON
    Cave NON
    Nombre de parking 1
    Exposition Ouest
    Année de construction 2024

    Infos financières

    Caractéristiques Valeurs
    Prix de vente honoraires TTC inclus 309 876 €

    Bilans énergétiques

    DPE GES
    Ce bien vous intéresse ?
    Fieldset par défaut
    Fieldset par défaut
    Validation

    * Champs obligatoires

    Contacter l'agence
    Validation
    Les informations recueillies sur ce formulaire sont enregistrées dans un fichier informatisé par La Boite Immo agissant comme Sous-traitant du traitement pour la gestion de la clientèle/prospects de l'Agence / du Réseau qui reste Responsable du Traitement de vos Données personnelles. La base légale du traitement repose sur l'intérêt légitime de l'Agence / du Réseau. Elles sont conservées jusqu'à demande de suppression et sont destinées à l'Agence / au Réseau. Conformément à la loi « informatique et libertés », vous disposez des droits d’accès, de rectification, d’effacement, d’opposition, de limitation et de portabilité de vos données. Vous pouvez retirer votre consentement à tout moment en contactant directement l’Agence / Le Réseau. Consultez le site https://cnil.fr/fr pour plus d’informations sur vos droits. Si vous estimez, après avoir contacté l'Agence / le Réseau, que vos droits « Informatique et Libertés » ne sont pas respectés, vous pouvez adresser une réclamation à la CNIL. Nous vous informons de l’existence de la liste d'opposition au démarchage téléphonique « Bloctel », sur laquelle vous pouvez vous inscrire ici : https://www.bloctel.gouv.fr Dans le cadre de la protection des Données personnelles, nous vous invitons à ne pas inscrire de Données sensibles dans le champ de saisie libre.
    Ce site est protégé par reCAPTCHA, les Politiques de Confidentialité et les Conditions d'Utilisation de Google s'appliquent.

    Localisationdu bien

    • Commerces et santé
    • Loisirs
    • Ecoles
    • Transports
    • Pratique