0
  • Acheter De l'ancien
  • Louer
Dans un rayon de
Budget
Mini
Maxi

    Faites estimer votre bien par un professionnel

    Estimer votre bien

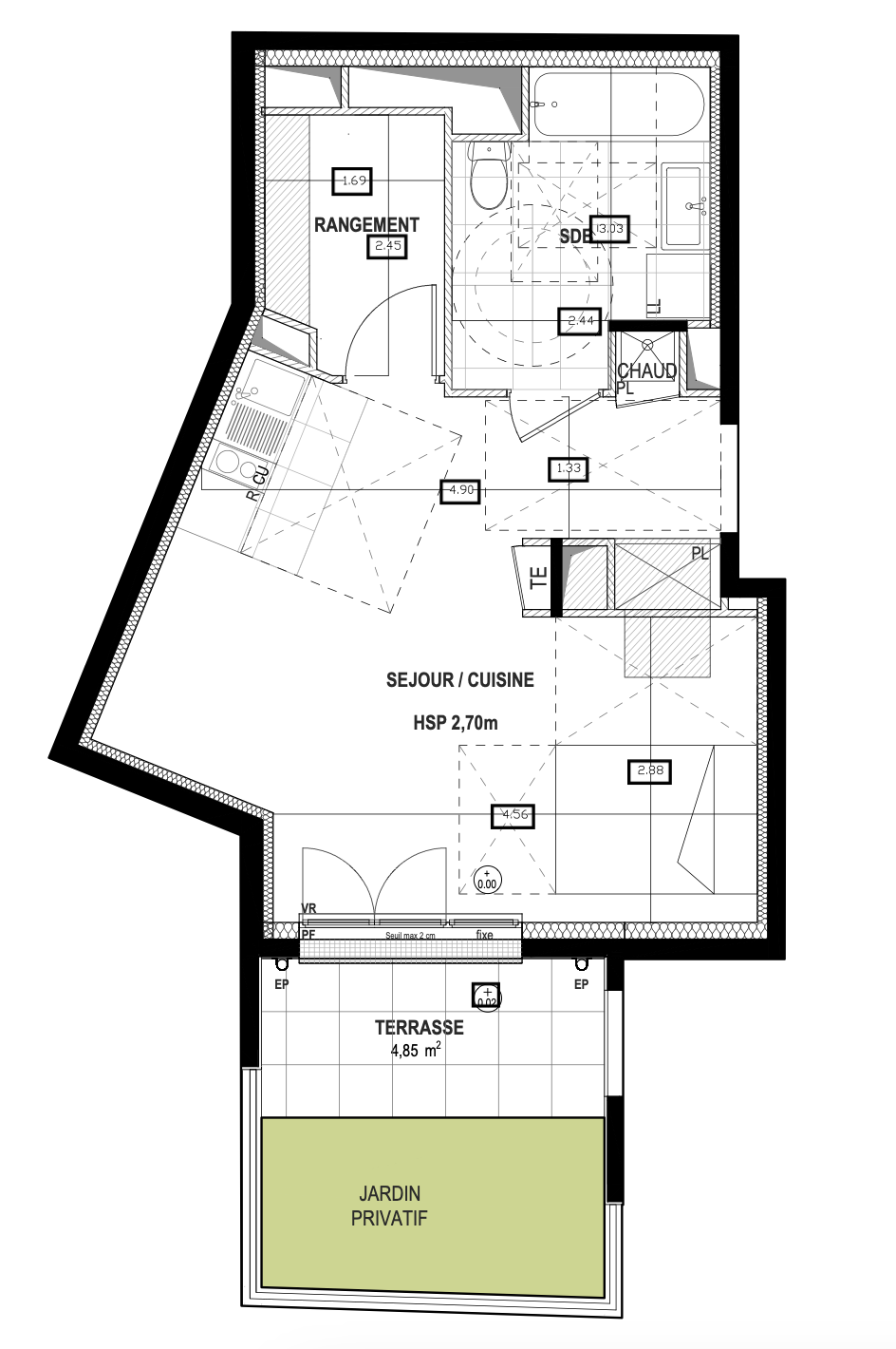
    Studio avec terrasse et jardin privatif.

    Aubervilliers (93300)
    Réf : EMCM

    Cet appartement offre une surface habitable d’environ 36 m², comprenant une pièce de vie avec cuisine ouverte d’environ 26 m², un espace de rangement séparé de près de 4 m² ainsi qu’une salle de bains confortable d’environ 6 m²

    L’agencement permet une circulation fluide et une optimisation des volumes, notamment grâce à une belle hauteur sous plafond de 2,70m.

    Un véritable atout de ce bien réside dans ses espaces extérieurs privatifs : une terrasse d’environ 5 m² prolongeant le séjour, suivie d’un jardin privatif d’environ 5 m².

    Le logement prend place au sein d’une résidence sécurisée, organisée autour d’une voie piétonne intérieure desservant les bâtiments et leurs halls protégés par accès contrôlé.

    Contactez-nous pour plus d'informations !

    Prix indiqués en TVA réduite

    Images d'illustration, non contractuelles

    Prix du bien 216 275 €
    Pièce(s) 1

    Caractéristiques du bien

    Caractéristiques Valeurs
    Code postal 93300
    Surface habitable (m²) 36,13 m²
    Surface loi Carrez (m²) 36,13 m²
    Nombre de pièces 1
    Nb de salle de bains 1
    Cuisine Américaine
    Mode de chauffage Gaz
    Type de chauffage TRAD_TYPE_CHAUFF_CHAUDIERE
    Format de chauffage Individuel
    Interphone OUI
    Visiophone OUI
    Loggia NON
    Terrasse OUI
    Cave NON
    Exposition Sud
    Année de construction 2025

    Infos financières

    Caractéristiques Valeurs
    Prix de vente honoraires TTC inclus 216 275 €

    Bilans énergétiques

    DPE GES
    Ce bien vous intéresse ?
    Fieldset par défaut
    Fieldset par défaut
    Validation

    * Champs obligatoires

    Contacter l'agence
    Validation
    Les informations recueillies sur ce formulaire sont enregistrées dans un fichier informatisé par La Boite Immo agissant comme Sous-traitant du traitement pour la gestion de la clientèle/prospects de l'Agence / du Réseau qui reste Responsable du Traitement de vos Données personnelles. La base légale du traitement repose sur l'intérêt légitime de l'Agence / du Réseau. Elles sont conservées jusqu'à demande de suppression et sont destinées à l'Agence / au Réseau. Conformément à la loi « informatique et libertés », vous disposez des droits d’accès, de rectification, d’effacement, d’opposition, de limitation et de portabilité de vos données. Vous pouvez retirer votre consentement à tout moment en contactant directement l’Agence / Le Réseau. Consultez le site https://cnil.fr/fr pour plus d’informations sur vos droits. Si vous estimez, après avoir contacté l'Agence / le Réseau, que vos droits « Informatique et Libertés » ne sont pas respectés, vous pouvez adresser une réclamation à la CNIL. Nous vous informons de l’existence de la liste d'opposition au démarchage téléphonique « Bloctel », sur laquelle vous pouvez vous inscrire ici : https://www.bloctel.gouv.fr Dans le cadre de la protection des Données personnelles, nous vous invitons à ne pas inscrire de Données sensibles dans le champ de saisie libre.
    Ce site est protégé par reCAPTCHA, les Politiques de Confidentialité et les Conditions d'Utilisation de Google s'appliquent.

    Localisationdu bien

    • Commerces et santé
    • Loisirs
    • Ecoles
    • Transports
    • Pratique