0
  • Acheter De l'ancien
  • Louer
Dans un rayon de
Budget
Mini
Maxi

    Faites estimer votre bien par un professionnel

    Estimer votre bien

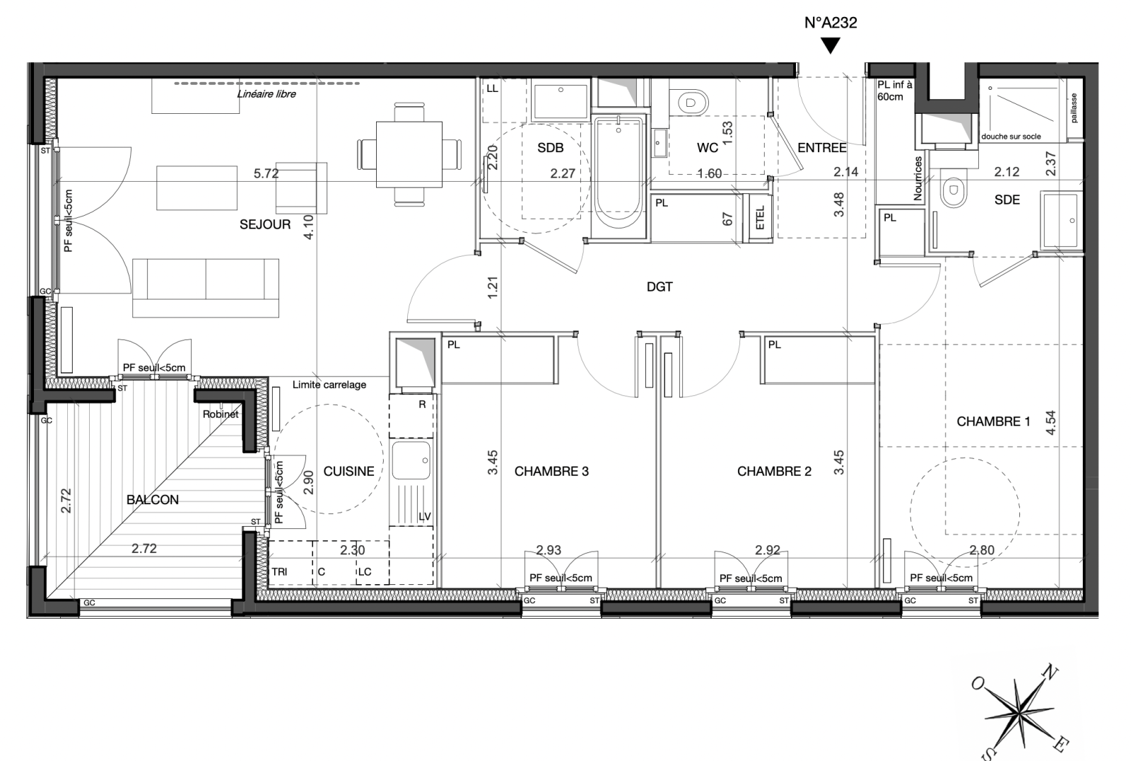
    T4 avec balcon, parking et cave.

    Saint-Ouen-sur-Seine (93400)
    Réf : CTL8

    Découvez cet appartement de 4 pièces, situé au 3ème étage. Ce T4 offre une surface habitable de 85,47m², prolongée par un balcon de 7,02m².

    L’entrée de 4,22m² dessert un séjour de 22,71m², ouvert sur l’extérieur grâce à une porte-fenêtre donnant sur le balcon. La cuisine, mesure 6,51m².

    L’espace nuit se compose de trois chambres :

    • Chambre 1 : 13,11m² (avec salle d'eau privative)
    • Chambre 2 : 10,03m²
    • Chambre 3 : 10,05m²

    L’appartement dispose d’une salle d’eau de 4,38m², d’une salle de bains de 4,63m² et de WC séparés de 2,45m². Un dégagement de 7,37m² facilite la circulation entre les pièces et intègre plusieurs placards.

    Résidence bien située, à proximité des commerces, des écoles et des transports.

    Parking et cave inclus dans le prix.

    Images d'llustration, non contractuelles.

    Contactez-nous pour plus d'informations !

    découvrir le bien
    Prix du bien 680 000 €
    Pièce(s) 4
    Chambre(s) 3

    Caractéristiques du bien

    Caractéristiques Valeurs
    Code postal 93400
    Surface habitable (m²) 85,47 m²
    Surface loi Carrez (m²) 85,47 m²
    Nombre de chambre(s) 3
    Nombre de pièces 4
    Etage 3
    Nombre de niveaux 1
    Ascenseur OUI
    Vue dégagée
    Nb de salle de bains 1
    Nb de salle d'eau 1
    Interphone OUI
    Balcon OUI
    Loggia NON
    Terrasse NON
    Cave OUI
    Nombre de parking 1
    Exposition Sud-Ouest

    Infos financières

    Caractéristiques Valeurs
    Prix de vente 680 000 €
    Les honoraires d'agence seront intégralement à la charge du vendeur  

    Bilans énergétiques

    DPE GES
    Ce bien vous intéresse ?
    Fieldset par défaut
    Fieldset par défaut
    Validation

    * Champs obligatoires

    Contacter l'agence
    Validation
    Les informations recueillies sur ce formulaire sont enregistrées dans un fichier informatisé par La Boite Immo agissant comme Sous-traitant du traitement pour la gestion de la clientèle/prospects de l'Agence / du Réseau qui reste Responsable du Traitement de vos Données personnelles. La base légale du traitement repose sur l'intérêt légitime de l'Agence / du Réseau. Elles sont conservées jusqu'à demande de suppression et sont destinées à l'Agence / au Réseau. Conformément à la loi « informatique et libertés », vous disposez des droits d’accès, de rectification, d’effacement, d’opposition, de limitation et de portabilité de vos données. Vous pouvez retirer votre consentement à tout moment en contactant directement l’Agence / Le Réseau. Consultez le site https://cnil.fr/fr pour plus d’informations sur vos droits. Si vous estimez, après avoir contacté l'Agence / le Réseau, que vos droits « Informatique et Libertés » ne sont pas respectés, vous pouvez adresser une réclamation à la CNIL. Nous vous informons de l’existence de la liste d'opposition au démarchage téléphonique « Bloctel », sur laquelle vous pouvez vous inscrire ici : https://www.bloctel.gouv.fr Dans le cadre de la protection des Données personnelles, nous vous invitons à ne pas inscrire de Données sensibles dans le champ de saisie libre.
    Ce site est protégé par reCAPTCHA, les Politiques de Confidentialité et les Conditions d'Utilisation de Google s'appliquent.

    Localisationdu bien

    • Commerces et santé
    • Loisirs
    • Ecoles
    • Transports
    • Pratique