0
  • Acheter De l'ancien
  • Louer
Dans un rayon de
Budget
Mini
Maxi

    Faites estimer votre bien par un professionnel

    Estimer votre bien

    T4 au 2ème étage avec balcon et parking.

    Saint-Ouen-sur-Seine (93400)
    Réf : EDLS

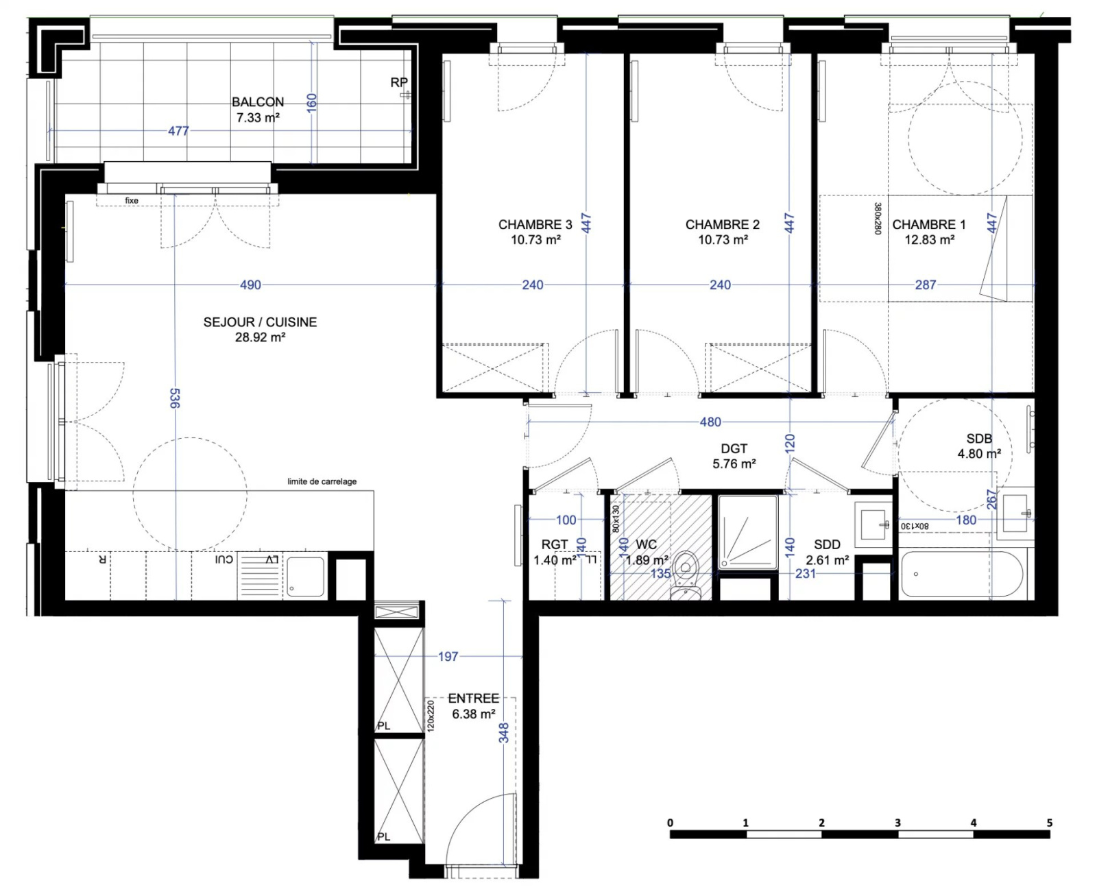
    Découvrez ce T4 de 86,05m2, situé au 2ème étage. L'appartement dispose d'une entrée de 6,38m2, d'un séjour/cuisine de 28,82m2. Trois grandes chambres dont une de 12,83m2 et 2 autres de 10,73m2, un dégagement. Une salle de bain de 4,80, une salle de douche de 2,61m2 et un wc indépendant. De plus, un balcon de 7,33m2, accessible depuis le séjour/cuisine complète ce bien. Contactez-nous pour plus d'informations. Prix affiche en TVA réduite. Parking en sous-sol inclus dans le prix Images d'illustration, non contractuelles

    Prix du bien 569 700 €
    Pièce(s) 4
    Chambre(s) 3

    Caractéristiques du bien

    Caractéristiques Valeurs
    Code postal 93400
    Surface habitable (m²) 93,38 m²
    Surface loi Carrez (m²) 86,05 m²
    Nombre de chambre(s) 3
    Nombre de pièces 4
    Etage 2
    Vue Aperçu,Ville
    Nb de salle de bains 1
    Nb de salle d'eau 1
    Mode de chauffage Autre
    Type de chauffage Radiateur
    Format de chauffage Collectif
    Balcon OUI

    Infos financières

    Caractéristiques Valeurs
    Prix de vente 569 700 €
    Les honoraires d'agence seront intégralement à la charge du vendeur  

    Bilans énergétiques

    DPE GES
    Ce bien vous intéresse ?
    Fieldset par défaut
    Fieldset par défaut
    Validation

    * Champs obligatoires

    Contacter l'agence
    Validation
    Les informations recueillies sur ce formulaire sont enregistrées dans un fichier informatisé par La Boite Immo agissant comme Sous-traitant du traitement pour la gestion de la clientèle/prospects de l'Agence / du Réseau qui reste Responsable du Traitement de vos Données personnelles. La base légale du traitement repose sur l'intérêt légitime de l'Agence / du Réseau. Elles sont conservées jusqu'à demande de suppression et sont destinées à l'Agence / au Réseau. Conformément à la loi « informatique et libertés », vous disposez des droits d’accès, de rectification, d’effacement, d’opposition, de limitation et de portabilité de vos données. Vous pouvez retirer votre consentement à tout moment en contactant directement l’Agence / Le Réseau. Consultez le site https://cnil.fr/fr pour plus d’informations sur vos droits. Si vous estimez, après avoir contacté l'Agence / le Réseau, que vos droits « Informatique et Libertés » ne sont pas respectés, vous pouvez adresser une réclamation à la CNIL. Nous vous informons de l’existence de la liste d'opposition au démarchage téléphonique « Bloctel », sur laquelle vous pouvez vous inscrire ici : https://www.bloctel.gouv.fr Dans le cadre de la protection des Données personnelles, nous vous invitons à ne pas inscrire de Données sensibles dans le champ de saisie libre.
    Ce site est protégé par reCAPTCHA, les Politiques de Confidentialité et les Conditions d'Utilisation de Google s'appliquent.

    Localisationdu bien

    • Commerces et santé
    • Loisirs
    • Ecoles
    • Transports
    • Pratique