0
  • Acheter De l'ancien
  • Louer
Dans un rayon de
Budget
Mini
Maxi

    Faites estimer votre bien par un professionnel

    Estimer votre bien

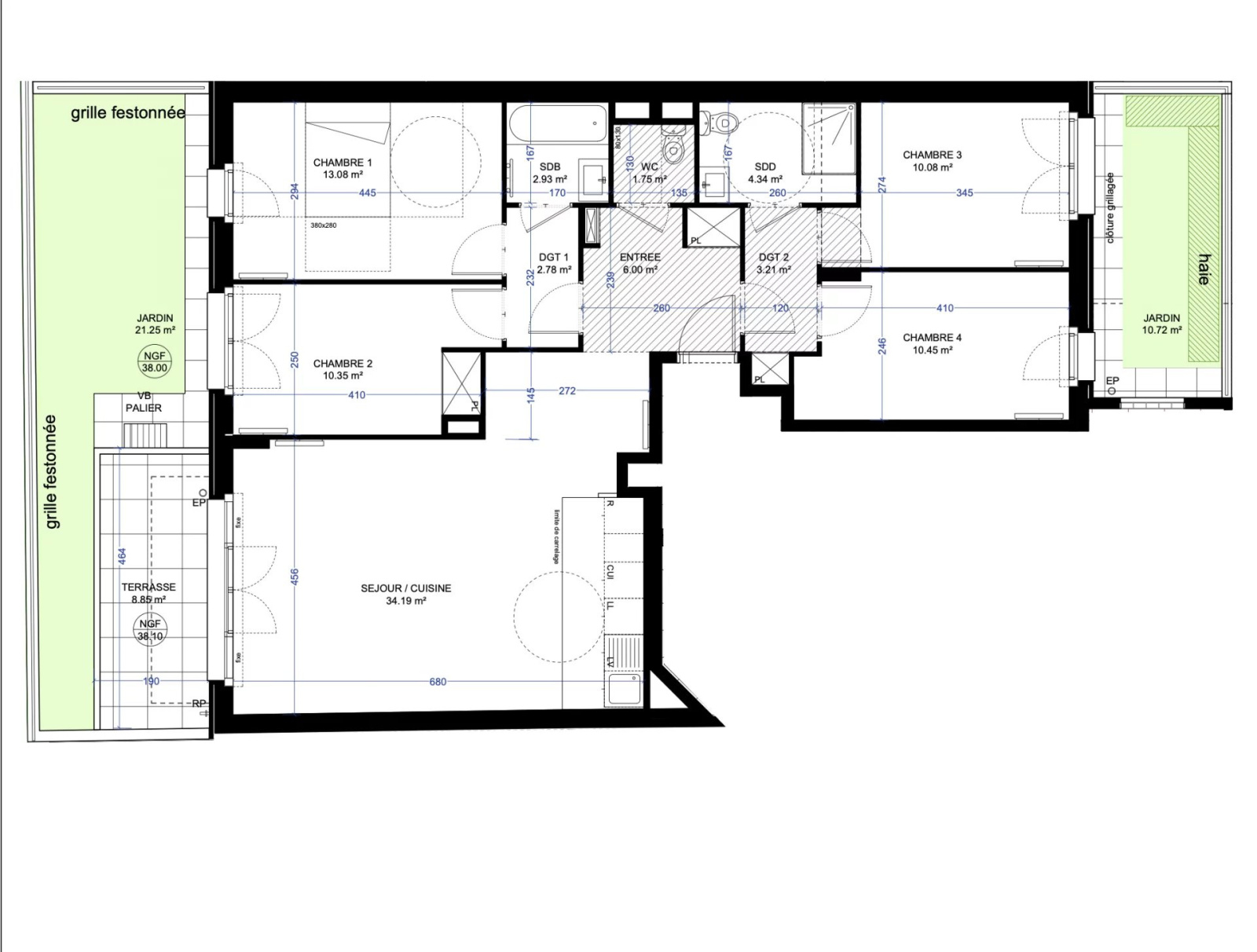
    T5 en rez-de-jardin avec terrasse, jardins et parking.

    Saint-Ouen-sur-Seine (93400)
    Réf : EDLS
    Découvrez ce T5 de 99,16m2, situé en rez-de-jardin. L'appartement dispose d'une entrée de 6m2, d'un séjour/cuisine de 34,19m2. Quatre grandes chambres (13,08-10,35-10,08-10,45m2), deux dégagements. Une salle de bain de 2,93m2, une salle de douche de 4,34m2 et un wc indépendant. De plus, une terrasse de 8,85m2, accessible depuis le séjour/cuisine complète ce bien. L'appartement dispose également de deux jardins de 21,25 et 10,75m2, l'un accessible depuis la chambre 1 et 2 et l'autre depuis la chambre 3 et 4. Contactez-nous pour plus d'informations. Prix affiche en TVA réduite. Parking en sous-sol inclus dans le prix Images d'illustration, non contractuelles
    Prix du bien 584 646 €
    Pièce(s) 5
    Chambre(s) 4

    Caractéristiques du bien

    Caractéristiques Valeurs
    Code postal 93400
    Surface habitable (m²) 99,14 m²
    Surface loi Carrez (m²) 99,14 m²
    Nombre de chambre(s) 4
    Nombre de pièces 5
    Vue Aperçu,Ville
    Nb de salle de bains 1
    Nb de salle d'eau 1
    Mode de chauffage Autre
    Type de chauffage Radiateur
    Format de chauffage Collectif
    Terrasse OUI

    Infos financières

    Caractéristiques Valeurs
    Prix de vente 584 646 €
    Les honoraires d'agence seront intégralement à la charge du vendeur  

    Bilans énergétiques

    DPE GES
    Ce bien vous intéresse ?
    Fieldset par défaut
    Fieldset par défaut
    Validation

    * Champs obligatoires

    Contacter l'agence
    Validation
    Les informations recueillies sur ce formulaire sont enregistrées dans un fichier informatisé par La Boite Immo agissant comme Sous-traitant du traitement pour la gestion de la clientèle/prospects de l'Agence / du Réseau qui reste Responsable du Traitement de vos Données personnelles.
    La base légale du traitement repose sur l’intérêt légitime de l'Agence / du Réseau.
    Elles sont conservées jusqu'à demande de suppression et sont destinées à l'Agence / au Réseau.
    Conformément à la loi « informatique et libertés », vous pouvez exercer votre droit d'accès aux données vous concernant et les faire rectifier en contactant l'Agence / le Réseau.
    Si vous estimez, après avoir contacté l'Agence / le Réseau, que vos droits « Informatique et Libertés » ne sont pas respectés, vous pouvez adresser une réclamation à la CNIL.
    Nous vous informons de l’existence de la liste d'opposition au démarchage téléphonique « Bloctel », sur laquelle vous pouvez vous inscrire ici : https://www.bloctel.gouv.fr 
    Dans le cadre de la protection des Données personnelles, nous vous invitons à ne pas inscrire de Données sensibles dans le champ de saisie libre
    Ce site est protégé par reCAPTCHA, les Politiques de Confidentialité et les Conditions d'Utilisation de Google s'appliquent.

    Localisationdu bien

    • Commerces et santé
    • Loisirs
    • Ecoles
    • Transports
    • Pratique