0
  • Acheter De l'ancien
  • Louer
Dans un rayon de
Budget
Mini
Maxi

    Faites estimer votre bien par un professionnel

    Estimer votre bien

    À vendre – Appartement 5 pièces avec balcon et deux places de parking.

    Massy (91300)
    Réf : NXT

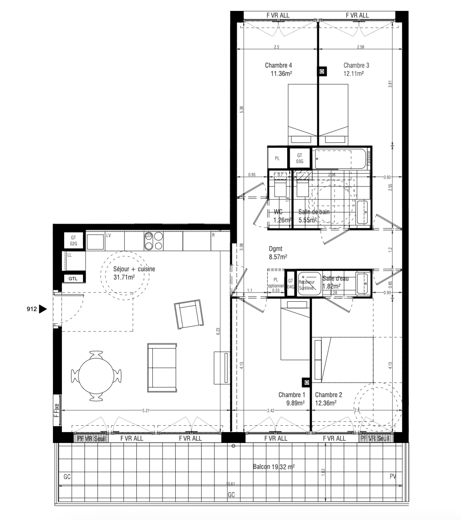
    Situé dans le quartier Atlantis à Massy, Triangle d'Or vous propose cet appartement de 94,63 m² habitables au 1er étage. Il se compose d’une pièce de vie avec cuisine ouverte de 31,71 m² donnant accès à un balcon de 19,32 m².

    L’espace nuit comprend quatre chambres de 9,89 m², 12,36 m² (avec salle d'eau privative), 12,11 m² et 11,36 m². L’appartement dispose d’une salle de bain de 5,55 m², d’une salle d’eau de 1,82 m² et d’un WC indépendant de 1,26 m². Un dégagement de 8,57 m² permet une circulation fluide entre les pièces.

    La résidence s’inscrit dans un environnement urbain intégré à la nature. Elle se compose de plusieurs bâtiments entourant un jardin paysager en cœur d’îlot et bénéficie d’un cadre calme à proximité immédiate des commerces, des écoles et des transports.

    Contactez-nous pour plus d'informations sur votre futur chez-vous !
    2 places de parking incluses dans le prix.
    Images d'illustration, non contractuelles

    découvrir le bien
    Prix du bien 466 000 €
    Pièce(s) 5
    Chambre(s) 4

    Caractéristiques du bien

    Caractéristiques Valeurs
    Code postal 91300
    Surface habitable (m²) 94,63 m²
    Surface loi Carrez (m²) 94,63 m²
    Nombre de chambre(s) 4
    Nombre de pièces 5
    Etage 1
    Vue dégagée
    Nb de salle de bains 1
    Nb de salle d'eau 1
    Cuisine Américaine
    Interphone OUI
    Visiophone OUI
    Balcon OUI
    Loggia NON
    Terrasse NON
    Cave NON
    Exposition Sud-Est
    Année de construction 2025

    Infos financières

    Caractéristiques Valeurs
    Prix de vente honoraires TTC inclus 466 000 €

    Bilans énergétiques

    DPE GES
    Ce bien vous intéresse ?
    Fieldset par défaut
    Fieldset par défaut
    Validation

    * Champs obligatoires

    Contacter l'agence
    Validation
    Les informations recueillies sur ce formulaire sont enregistrées dans un fichier informatisé par La Boite Immo agissant comme Sous-traitant du traitement pour la gestion de la clientèle/prospects de l'Agence / du Réseau qui reste Responsable du Traitement de vos Données personnelles.
    La base légale du traitement repose sur l’intérêt légitime de l'Agence / du Réseau.
    Elles sont conservées jusqu'à demande de suppression et sont destinées à l'Agence / au Réseau.
    Conformément à la loi « informatique et libertés », vous pouvez exercer votre droit d'accès aux données vous concernant et les faire rectifier en contactant l'Agence / le Réseau.
    Si vous estimez, après avoir contacté l'Agence / le Réseau, que vos droits « Informatique et Libertés » ne sont pas respectés, vous pouvez adresser une réclamation à la CNIL.
    Nous vous informons de l’existence de la liste d'opposition au démarchage téléphonique « Bloctel », sur laquelle vous pouvez vous inscrire ici : https://www.bloctel.gouv.fr 
    Dans le cadre de la protection des Données personnelles, nous vous invitons à ne pas inscrire de Données sensibles dans le champ de saisie libre
    Ce site est protégé par reCAPTCHA, les Politiques de Confidentialité et les Conditions d'Utilisation de Google s'appliquent.

    Localisationdu bien

    • Commerces et santé
    • Loisirs
    • Ecoles
    • Transports
    • Pratique